Objektbeschreibung
Sie lieben das Besondere,…..
…. schätzen die Natur und möchten doch modern wohnen mit viel Platz für die Familie? Genau hier können Sie all Ihre Wohnträume verwirklichen!
In ruhiger Lage von Stoob, direkt am Ufer des Stoober Bachs, warten diese 16 Doppelhaushälften, die in massiver, energieeffizienter Bauweise errichtet wurden, auf
Mehr lesen
Objekt ID: 2880404
Preis: € 938.36
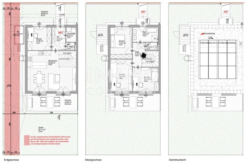
Nutzfläche: 106 m2
Gesamtfläche: 0 m2
Ziimmer insgesamt: 5
Schlafzimmer: 5
Badezimmer: 1
Miete (netto) €: 853.05
USt €: 85.31
Gesamtbelastung €: 938.36
Nutzungsart: Wohnen
Provisionspflichtig: nein
Balkon/Terrassen - Fläche: 16
Beziehbar: Januar 2026
Max. Mietdauer: unbefristet
WC: 2
Neubau
Gäste-WC
Parkett
Bad mit Fenster
Fußbodenheizung
Abstellraum
Luft-Wärmepumpe
Massiv
Massivbauweise
Ähnliche Objekte
Wohnen in familiärer Anlage – Moderne,...
€ 926.54
5
Schlafzimmer
1
Badezimmer
106 m2
Größe
April 19, 2026
Naturnah Wohnen am Stoober Bach – Mode...
€ 938.39
5
Schlafzimmer
1
Badezimmer
106 m2
Größe
April 19, 2026
Traumhafte Doppelhaushälfte auf Eckgrundstüc...
€ 926.54
5
Schlafzimmer
1
Badezimmer
106 m2
Größe
April 19, 2026


















