Objektbeschreibung
Wohnen beim Freizeitparadies „Alte Donau“
Nur 170 Meter von der alten Donau entfernt, entsteht ein neues Wohnbauprojekt auf Baurechtsgrund.
Mit einer Vielzahl an verschiedenen Grundrissen und Wohnungsgrößen ist für jeden Bedarf das passende Angebot dabei.
Die Fertigstellung erfolgt im Frühjahr 2025.
Das Projekt umfasst insgesamt 19
Mehr lesen
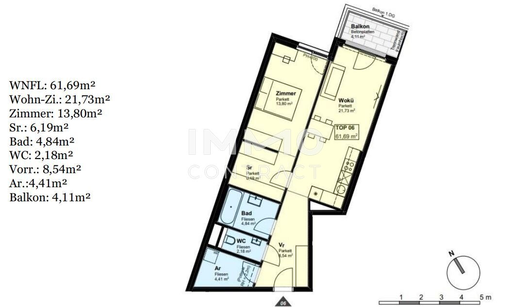
Objekt ID: 2880879
Preis: € 385.000
Nutzfläche: 62 m2
Gesamtfläche: 0 m2
Ziimmer insgesamt: 2
Schlafzimmer: 2
Badezimmer: 0
Miete/m2 €: 5875.17
Nutzungsart: Wohnen
Provisionspflichtig: nein
Provision: Provision bezahlt der Abgeber.
HWB: 27,30 kWh/(m²*a)
HWB Klasse: B
FGEE: 0.68
E-Ausweis Gültig Bis:: 27.02.2032
Energieausweis Art: Bedarf
Anzahl Balkone: 1
Balkon/Terrassen - Fläche: 7
Etage: 1. OG
Balkon
Personenaufzug
Fußbodenheizung
Fahrradraum
Abstellraum
Rollläden
Luft-Wärmepumpe
Massiv
Massivbauweise
Ähnliche Objekte
Schloßpark Hacking I 2 Zimmer I Gartenwohnun...
€ 885.000
2
Schlafzimmer
1
Badezimmer
67 m2
Größe
April 20, 2026
4 Zimmer I Eigengarten I Erstbezug [A\]
€ 1.740.000
4
Schlafzimmer
2
Badezimmer
129 m2
Größe
April 20, 2026


![4 Zimmer I Eigengarten I Erstbezug [A] 1AGGCuUTSwdiKmTGCCoBtm 2](https://gesucht-gefunden.at/wp-content/uploadstorage/2026/04/1AGGCuUTSwdiKmTGCCoBtm-2-525x350.jpg)









