Objektbeschreibung
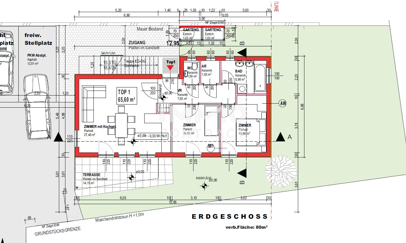
In unmittelbarer Nähe zur idyllischen Alten Donau befindet sich diese stilvolle 3-Zimmer-Gartenwohnung, die modernes Wohngefühl mit hoher Lebensqualität vereint. Mit einer Wohnfläche von 63,36 m², großzügigen bodentiefen Fenstern und direktem Zugang zum eigenen Garten bietet sie ein perfektes Zuhause für Paare, kleine Familien oder ruhesuchende Singles.
Die Immobilie überzeugt durch
Mehr lesen
Objekt ID: 2881773
Preis: € 495.000
Nutzfläche: 0 m2
Gesamtfläche: 66 m2
Ziimmer insgesamt: 3
Schlafzimmer: 3
Badezimmer: 1
Miete/m2 €: 6618.53
Nutzungsart: Wohnen
Provisionspflichtig: ja
Provision: 17.820,00 € inkl. 20% USt.
HWB: 51,30 kWh/(m²*a)
HWB Klasse: C
FGEE: 0.85
E-Ausweis Gültig Bis:: 29.07.2025
Energieausweis Art: Bedarf
Balkon/Terrassen - Fläche: 22
Beziehbar: 16.01.2026
Etage: 1.OG
WC: 1
Fußbodenheizung











