Objektbeschreibung
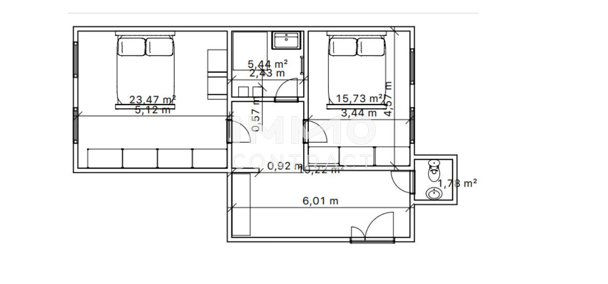
Diese wunderschöne 2-Zimmer Wohnung liegt im 1.Liftstock eines gepflegten Altbaus, und überzeugt mit hellen Räumen und einem sehr guten Grundriss und ihrem luxuriösem Touch .
Die Wohnung wurde erst im letzten Jahr komplett saniert und bietet eine Küche mit genug Platz für einen Esstisch, ein geräumiges WC, ein hofseitig
Mehr lesen
Objekt ID: 2887076
Preis: € 327.500
Nutzfläche: 64 m2
Gesamtfläche: 0 m2
Ziimmer insgesamt: 2
Schlafzimmer: 2
Badezimmer: 1
Miete/m2 €: 5081.46
Nutzungsart: Wohnen
Provisionspflichtig: ja
Provision: 11.790,00 € inkl. 20% USt.
HWB: 122 kWh/(m²*a)
HWB Klasse: B
E-Ausweis Gültig Bis:: 27.04.2024
Energieausweis Art: Bedarf
Beziehbar: 16.01.2026
WC: 1
Einbauküche
Parkett
Dusche
Ähnliche Objekte
***2-Zimmer-Neubauwohnung inklusive Küche mi...
€ 269.000
2
Schlafzimmer
1
Badezimmer
51 m2
Größe
April 20, 2026
***Sanierte 2-Zimmer-Altbauwohnung in Ruhela...
€ 199.900
2
Schlafzimmer
1
Badezimmer
54 m2
Größe
April 20, 2026
ERSTBEZUG Studio-Apartment: Sonnenuntergang ...
€ 470.500
1
Schlafzimmer
1
Badezimmer
36 m2
Größe
April 20, 2026















