Erweiterte Suche
Suchagent aktivieren
Exklusive Anzeigen

Zuhause ankommen! Mit der U4 ganz schnell möglich! Balkon und hochwertiger Neubau

€ 302.500,00

,

44.472 Zimmer
zu Favoriten hinzufügen
teilen
Suchergebnisse

Objektbeschreibung

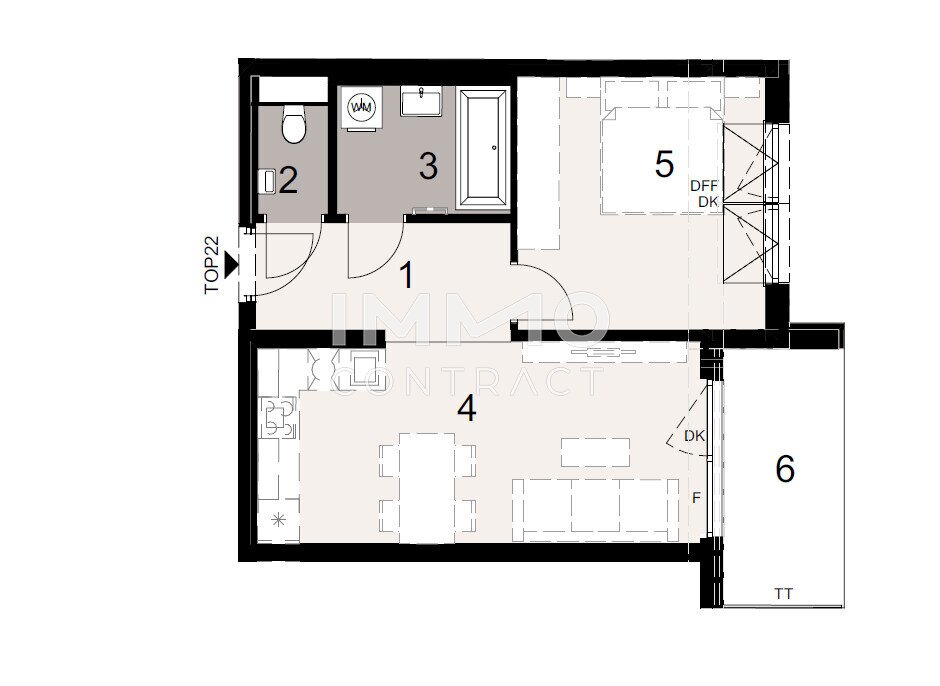
Wohngenuss mit Sternenblick

Diese gemütliche 2-Zimmer-Wohnung vereint Charme, Komfort und Wohlfühlatmosphäre auf einzigartige Weise.

Das helle Schlafzimmer mit seinem Dachschrägenfenster lädt dazu ein, den Blick in den Sternenhimmel zu richten und den Tag in Ruhe ausklingen zu lassen – ein Ort zum Träumen und Entspannen.

Im offenen Wohn-Essbereich verschmelzen Kochen,
Mehr lesen

Ort:
Bezirk:
Bundesland:
PLZ: 1140
Land: Österreich
Objekt ID: 2887396
Preis: € 302.500
Nutzfläche: 44 m2
Gesamtfläche: 0 m2
Ziimmer insgesamt: 2
Schlafzimmer: 2
Badezimmer: 0
Miete/m2 €: 6337.73
Nutzungsart: Wohnen
Provisionspflichtig: ja
Provision: 3% zzgl. 20 % USt.
HWB: 22,90 kWh/(m²*a)
HWB Klasse: B
FGEE: 0.68
E-Ausweis Gültig Bis:: 18.06.2033
Energieausweis Art: Bedarf
Balkon/Terrassen - Fläche: 6
Beziehbar: 01.11.2027
Etage: 1. DG
Neubau
WG-geeignet
Personenaufzug
Parkett
Badewanne
Fußbodenheizung
Kabel/Sat-TV
Fahrradraum
Abstellraum
Rollläden
rollstuhlgerecht
Luft-Wärmepumpe
Massiv
Massivbauweise
Gartennutzung
schlüsselfertig mit Keller
seniorengerecht
Räume veränderbar
Tiefgarage
Kabelkanäle
Neubaustandard
Aurora Top 22
Aurora Top 22

Ähnliche Objekte

vergleichen
1xZCo1aKfQTnk8PV47r8xd

Repräsentative Residenz

€ 3.300.000
4
Schlafzimmer
3
Badezimmer
April 20, 2026
vergleichen
1AxeXi9jaoTUZE590TAVt5

Top 2-Zimmer-Wohnung mit Balkon & Terras...

€ 499.000
2
Schlafzimmer
April 20, 2026
vergleichen
Wohnzimmer

Exklusive 3-Zi Erstbezugswohnung mit Kamin, ...

€ 1.050.000
115 m2
Größe
April 20, 2026

Vergleichen