Erweiterte Suche
Suchagent aktivieren
Exklusive Anzeigen

Neuer Preis Selbstgestalten und Mitbestimmen

€ 389.000,00

,

1334 Zimmer
zu Favoriten hinzufügen
teilen
Suchergebnisse

Objektbeschreibung

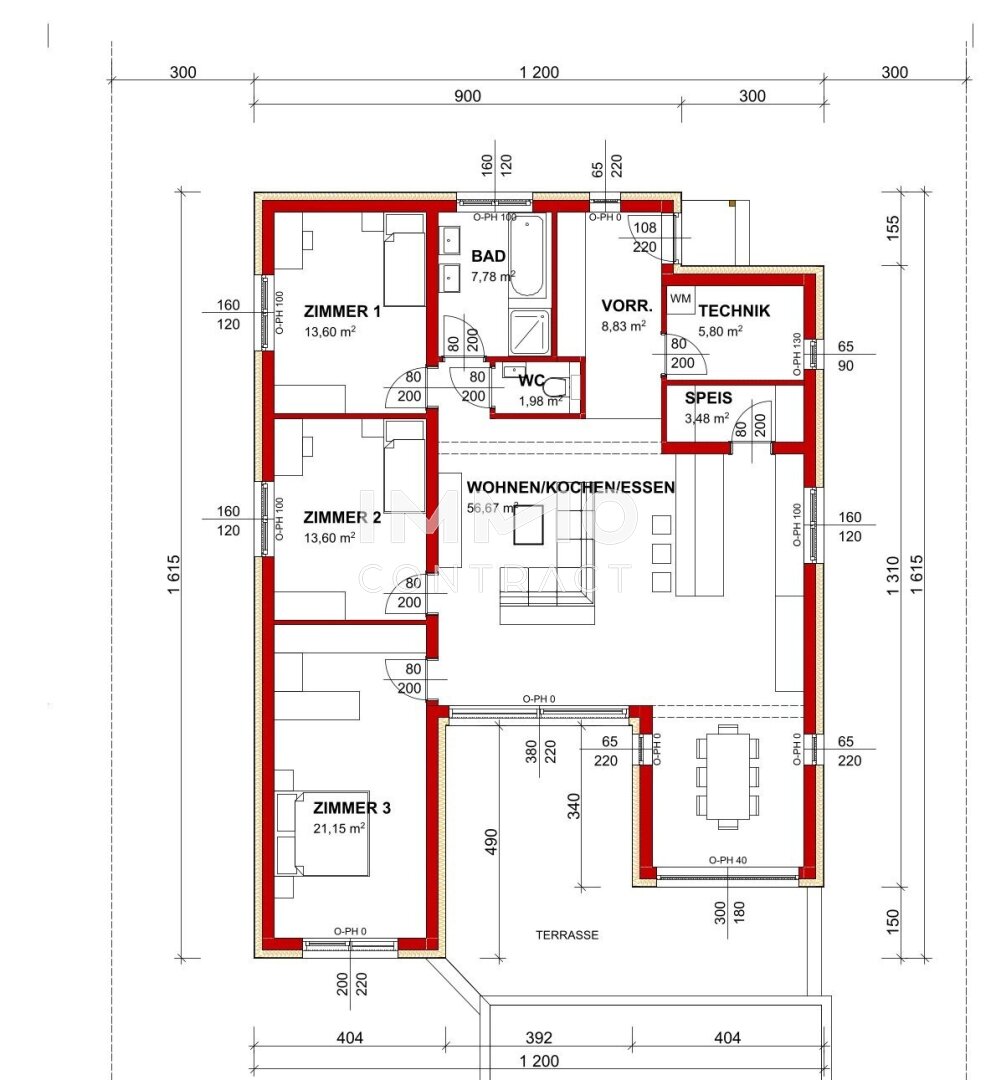
In der Gemeinde Sierndorf erwartet Sie ein exklusiver Bungalow, der keinen Wunsch offenlässt. Diese neue Immobilie, die eben entsteht, besticht durch ihre beeindruckende Massivbauweise und durchdachte Architektur.

Mit einer großzügigen Wohnfläche von ca. 133 m², verteilt auf nur einer Ebene, bietet dieses Haus ein perfektes Wohnkonzept für Familien oder anspruchsvolle
Mehr lesen

Bezirk:
Bundesland:
PLZ: 2011
Land: Österreich
Objekt ID: 2887592
Preis: € 389.000
Nutzfläche: 133 m2
Gesamtfläche: 542 m2
Ziimmer insgesamt: 4
Schlafzimmer: 4
Badezimmer: 1
Miete/m2 €: 2730.38
Nutzungsart: Wohnen
Provisionspflichtig: ja
Provision: 14.004,00 € inkl. 20% USt.
HWB: 59,70 kWh/(m²*a)
HWB Klasse: C
FGEE: 0.74
E-Ausweis Gültig Bis:: 05.07.2033
Energieausweis Art: Bedarf
Balkon/Terrassen - Fläche: 27
Beziehbar: nach Vereinbarung
WC: 1
Fußbodenheizung
Luft-Wärmepumpe
Massiv
Massivbauweise
Estrich
Wasch-/Trockenraum
Satteldach

Ähnliche Objekte

vergleichen
5reDzet3nxrIH5pEPYzDg0

Den nächsten Sommer bereits am eigenen Pool ...

€ 129.000
3
Schlafzimmer
1
Badezimmer
55 m2
Größe
April 18, 2026
vergleichen
4UmCAsySI15EekDk0BQrUB

ROHDIAMANT in IDYLLISCHER Sackgassenlage, Gr...

€ 250.000
2
Schlafzimmer
1
Badezimmer
80 m2
Größe
September 13, 2025

Vergleichen