Erweiterte Suche
Suchagent aktivieren
Exklusive Anzeigen

Attraktive Anlagewohnung in neuem Wohnensemble: Moderne, großzügige 1-Zimmer-Wohnung mit Tiefgarage

€ 169.752,88

,

39.421 Zimmer
zu Favoriten hinzufügen
teilen
Suchergebnisse

Objektbeschreibung

Ein Investment mit Weitblick – Sicheres Zusatzeinkommen oder Altersvorsorge gepaart mit vielen steuerlichen Vorteilen.

Sie möchten Ihr Kapital wertgesichert veranlagen? Diese Vorsorgewohnungen in Wiener Neustadt verbinden moderne Neubauqualität mit einem attraktiven Preis-Leistungs-Verhältnis dank Baurecht, einem soliden Mietertrag und einem zukunftssicheren Standort. Ideal zur Diversifikation Ihres Portfolios oder als langfristige, inflationsgeschützte
Mehr lesen

Bezirk:
Bundesland:
PLZ: 2700
Land: Österreich
Objekt ID: 2888940
Preis: € 169.752.88
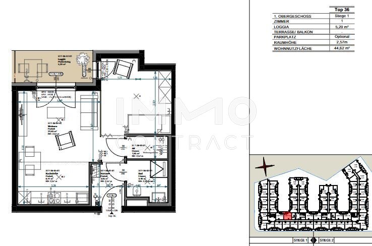
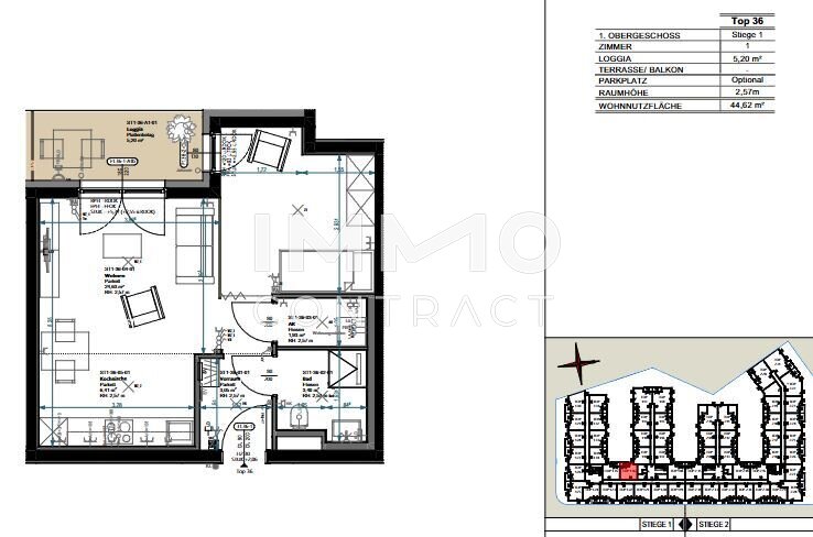
Nutzfläche: 39 m2
Gesamtfläche: 45 m2
Ziimmer insgesamt: 1
Schlafzimmer: 1
Badezimmer: 1
Miete/m2 €: 3804.41
Nutzungsart: Anlage
Provisionspflichtig: ja
Provision: 3% des Kaufpreises zzgl. 20% USt.
HWB: 28,50 kWh/(m²*a)
HWB Klasse: B
FGEE: 0.74
E-Ausweis Gültig Bis:: 08.09.2031
Energieausweis Art: Bedarf
Balkon/Terrassen - Fläche: 5
Beziehbar: sofort
Etage: 1. OG
Einbauküche
Personenaufzug
Parkett
Dusche
Fußbodenheizung
Abstellraum
Massiv
Massivbauweise
Neu Neu 1_36 Grundriss
Neu Neu 1_36 Grundriss

Ähnliche Objekte

vergleichen
6uA6YPaWpuzd5vmn2h760c

Klein, fein & besonders

€ 125.000
2
Schlafzimmer
1
Badezimmer
52 m2
Größe
April 19, 2026
vergleichen
Neu neu Innenhof 1

Top Anlage: Große, vermietete 1-Zimmer-Wohnu...

€ 199.425.92
1
Schlafzimmer
1
Badezimmer
40 m2
Größe
April 17, 2026
vergleichen
Neu neu Top 36 Küche

Ihre Vorsorge: Im Erstbezug vermietete moder...

€ 161.452.88
1
Schlafzimmer
1
Badezimmer
39 m2
Größe
April 17, 2026

Vergleichen