Erweiterte Suche
Suchagent aktivieren
Exklusive Anzeigen

Lagerfläche | Außergewöhnliches Objekt mit großem Potential zur Vermietung | Variante (3)

,

zu Favoriten hinzufügen
teilen
Suchergebnisse

Objektbeschreibung

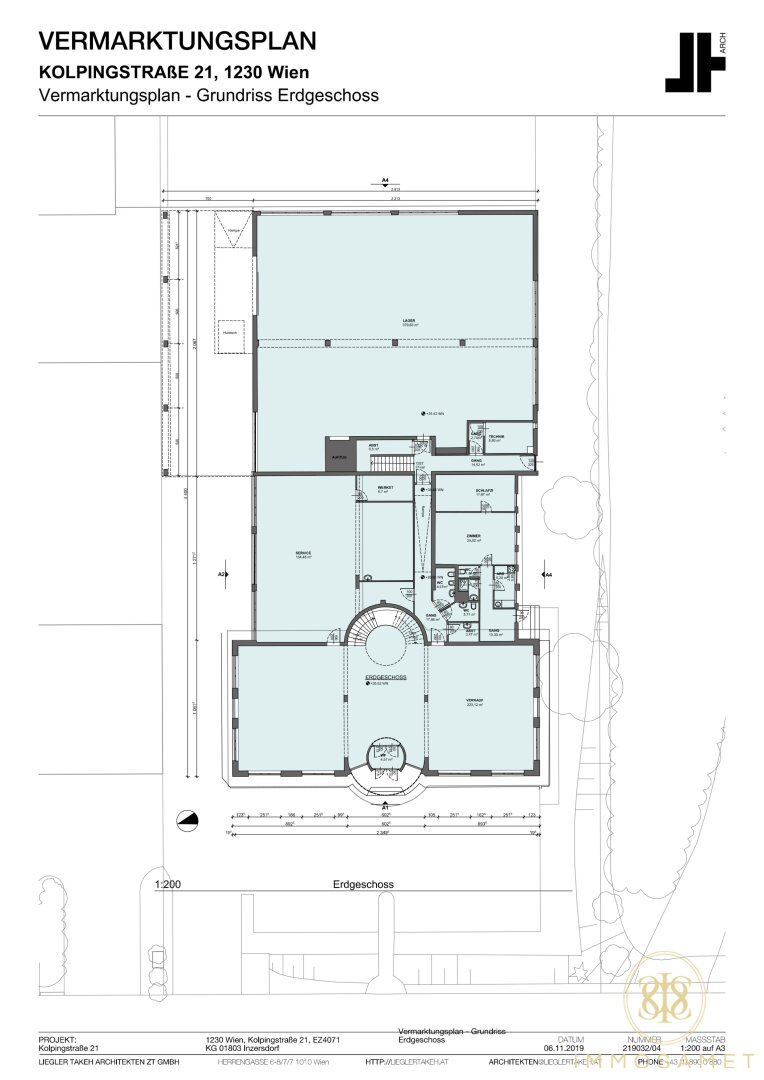
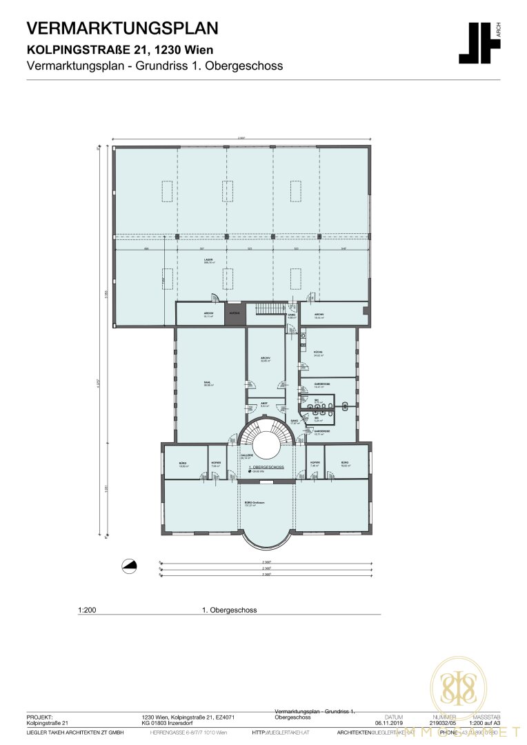
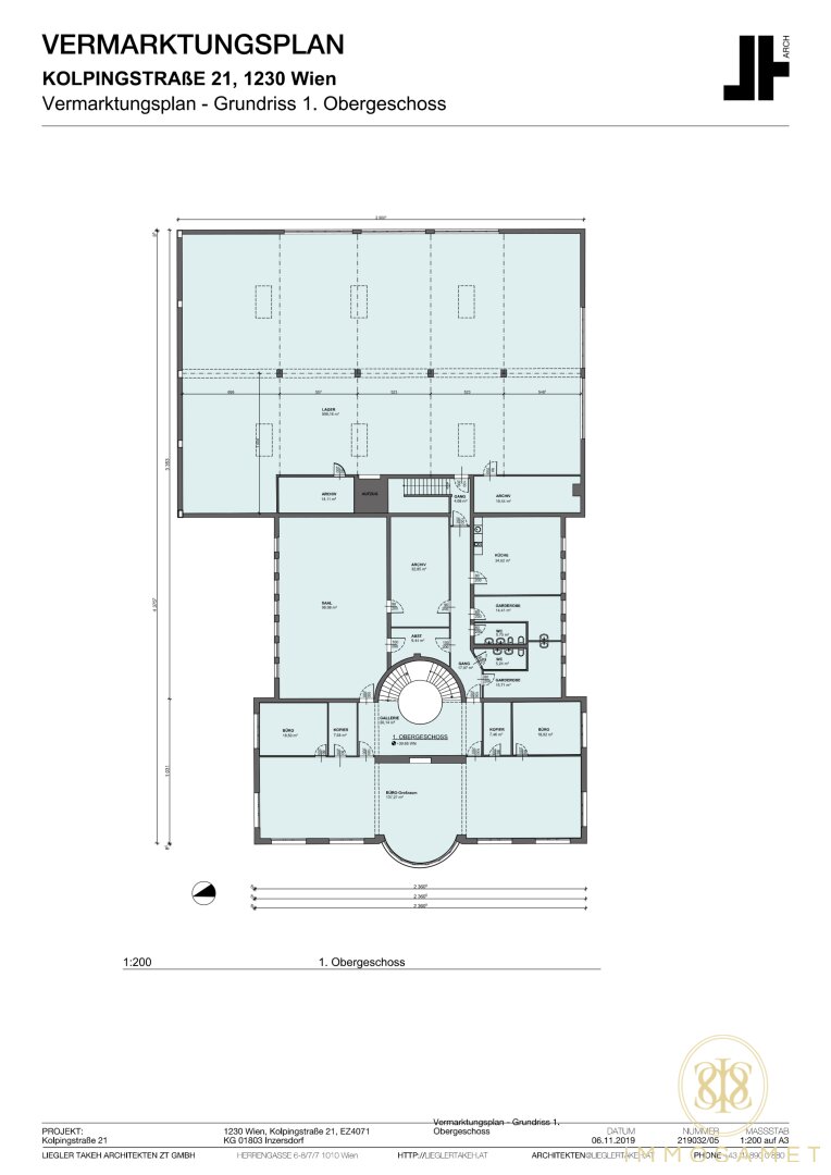
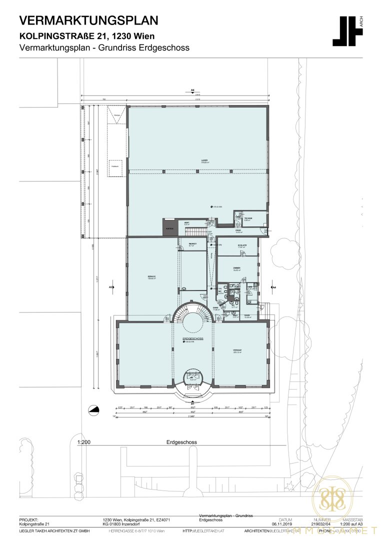
Dieses besondere Gewerbeobjekt gelangt zur Vermietung. Das freistehende Haus in der Kolpingstraße kann vielseitig genutzt werden: 

Variante 1) Gesamtfläche von 2.915,16qm exklusiv 

* Büroflächen auf 3 Etagen
* Terrasse
* Lagerhalle auf 2 Ebenen 
* Grünfläche 703qm
* 24 Stellplätze (Pauschal 1.000€) 
* 2.915qm
Mehr lesen

Ort:
Bezirk:
Bundesland:
PLZ: 1230
Land: Österreich
Objekt ID: 2891226
Nutzfläche: 0 m2
Gesamtfläche: 0 m2
Ziimmer insgesamt: 0
Schlafzimmer: 0
Badezimmer: 0
Miete/m2 €: 6.5
Miete (netto) €: 5773.04
Betriebskosten €: 888.16
Nutzungsart: Gewerbe
Provisionspflichtig: ja
Etage: EG

Vergleichen