Erweiterte Suche
Suchagent aktivieren
Exklusive Anzeigen

Großes Grundstück | 3 Bauplätze | Altbestand | Baubewilligte Pläne

€ 1.000.000,00

,

zu Favoriten hinzufügen
teilen
Suchergebnisse

Objektbeschreibung

Projektbeschreibung

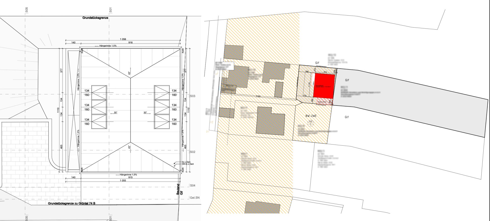
Zum Verkauf gelangt ein attraktives Gesamtprojekt bestehend aus drei Grundstücken in begehrter Wohnlage von Klosterneuburg-Kierling. Die Liegenschaft umfasst drei Bauplätze mit einer Gesamtgrundstücksfläche von ca. 3.857 m².

Die Grundstücke werden im Paket als Gesamtprojekt verkauft und eignen sich sowohl für Bauträger und Projektentwickler als auch für private Anleger oder Bauherren, die ein bereits vorbereitetes Wohnprojekt umsetzen oder eine
Mehr lesen

Bezirk:
Bundesland:
PLZ: 3400
Land: Österreich
Objekt ID: 2906337
Preis: € 1.000.000
Nutzfläche: 0 m2
Gesamtfläche: 3.857 m2
Ziimmer insgesamt: 0
Schlafzimmer: 0
Badezimmer: 0
Nutzungsart: Wohnen
Provisionspflichtig: ja
Provision: 3% des Kaufpreises zzgl. 20% USt.
HWB: 42 kWh/(m²*a)
HWB Klasse: B
FGEE: 0.69
E-Ausweis Gültig Bis:: 31.01.2032
Energieausweis Art: Bedarf

Vergleichen