Erweiterte Suche
Suchagent aktivieren
Exklusive Anzeigen

PRIMOŠTEN – LUXUSVILLA MIT SCHWIMMBAD, JACUZZI UND GROSSEM GARTEN

€ 1.590.000,00

,

9 Zimmer
zu Favoriten hinzufügen
teilen
Suchergebnisse

Objektbeschreibung

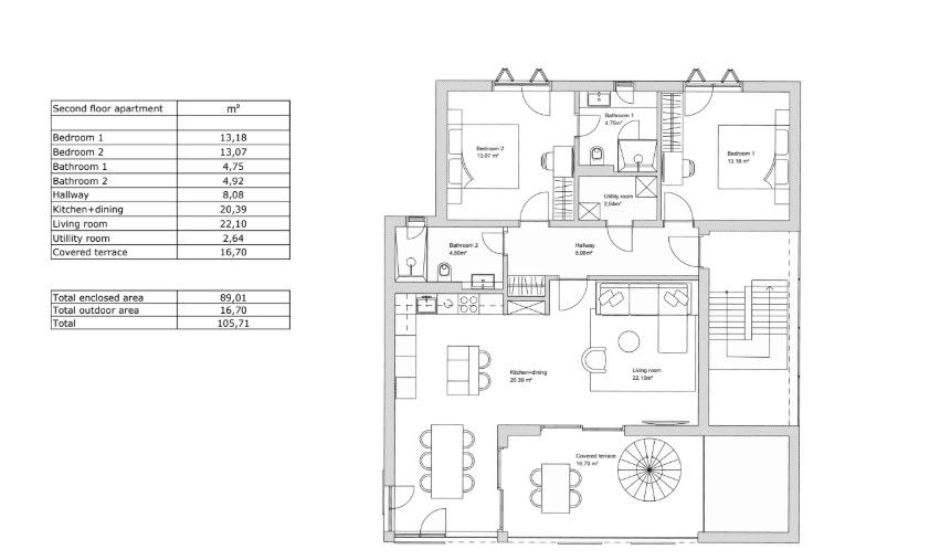
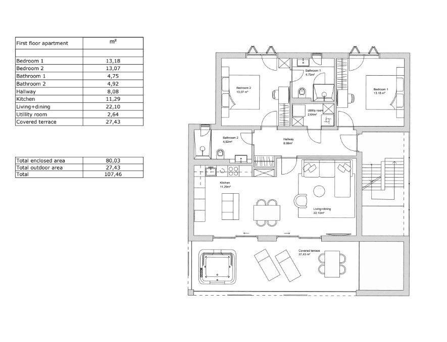
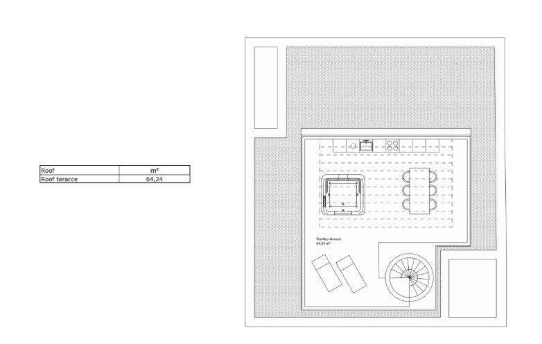
Zum Verkauf steht eine modern ausgestattete Luxusvilla in der Nähe von Primošten. Die Villa erstreckt sich über vier Etagen mit einer gesamten Nutzfläche von 312,7 m² und wurde für maximale Privatsphäre, höchsten Komfort und ein anspruchsvolles mediterranes Wohngefühl konzipiert.

Aufteilung und Ausstattung:

Erdgeschoss (104,36 m²):

Zwei Schlafzimmer
Zwei BadezimmerMehr lesen

Bezirk:
PLZ: 22202
Land: Croatia
Objekt ID: 2906667
Preis: € 1.590.000
Nutzfläche: 0 m2
Gesamtfläche: 134 m2
Ziimmer insgesamt: 9
Schlafzimmer: 9
Badezimmer: 6
Nutzungsart: Wohnen
Provisionspflichtig: ja

Ähnliche Objekte

vergleichen
1757968593 dron32

LUXUSVILLA MIT MEERBLICK – PRIMOŠTEN

€ 1.900.000
5
Schlafzimmer
4
Badezimmer
April 22, 2026
vergleichen
1754643376 3

PRIMOŠTEN – STEINHAUS P=50 M²

€ 250.000
2
Schlafzimmer
1
Badezimmer
April 22, 2026
vergleichen
1757496021 1

PRIMOŠTEN – REIHENHAUS S1, FLÄCHE = 146,57 m...

€ 600.000
4
Schlafzimmer
3
Badezimmer
April 22, 2026

Vergleichen