Erweiterte Suche
Suchagent aktivieren
Exklusive Anzeigen

ZADAR, PRIVLAKA – Dreistöckiges Apartmenthaus im Bau, 100 m vom Meer entfernt (S7)

€ 467.000,00

3 Zimmer
zu Favoriten hinzufügen
teilen
Suchergebnisse

Objektbeschreibung

ZADAR, PRIVLAKA – Dreistöckiges Apartmenthaus im Bau, 100 m vom Meer entfernt (S7)

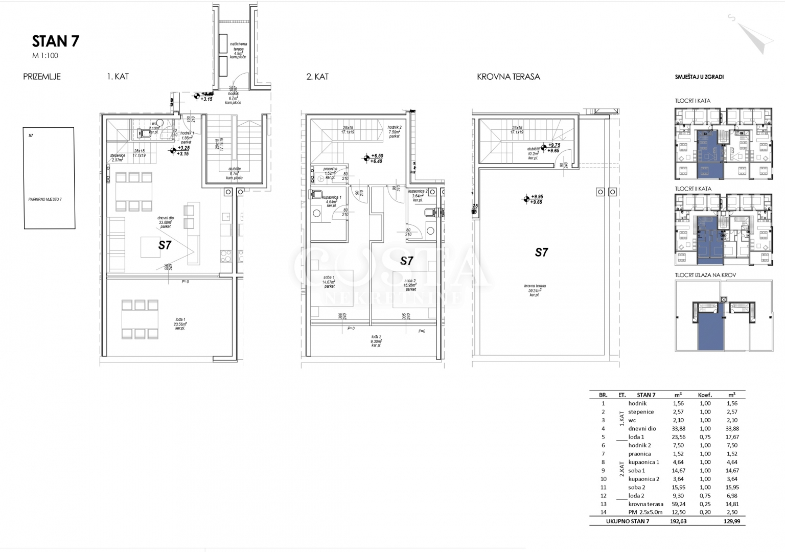
In Privlaka bei Zadar steht eine im Bau befindliche Wohnung zum Verkauf. Die 88,03 m² große Wohnung erstreckt sich über das erste und zweite Obergeschoss eines Wohngebäudes mit zehn Wohneinheiten. Sie besteht aus einem Wohnzimmer, einer Wohnküche,
Mehr lesen

Land: Croatia
Objekt ID: 2909683
Preis: € 467.000
Nutzfläche: 0 m2
Gesamtfläche: 0 m2
Ziimmer insgesamt: 3
Schlafzimmer: 3
Badezimmer: 2
Nutzungsart: Wohnen
Provisionspflichtig: ja
WC: 1

Ähnliche Objekte

vergleichen
7j0jzzgxtF0DZECWRoo7BG

Schöne Wohnung mit zwei Schlafzimmern in ein...

€ 296.200
2
Schlafzimmer
2
Badezimmer
90 m2
Größe
April 27, 2026
vergleichen
1752250975 1d933eb0 1ec5 4206 9a6a 287dd1c65110

PRIVLAKA, ZADAR – EXKLUSIVE GELEGENHEIT – Wo...

€ 1
5
Schlafzimmer
2
Badezimmer
April 26, 2026
vergleichen
1753546592 img 20250723 132830

ZADAR, PRIVLAKA – Erstklassiges Penthouse 50...

€ 760.000
4
Schlafzimmer
3
Badezimmer
April 26, 2026

Vergleichen