Objektbeschreibung
ZADAR, PRIVLAKA – Wohnung mit Garten im Bau, 100 m vom Meer entfernt (S1)
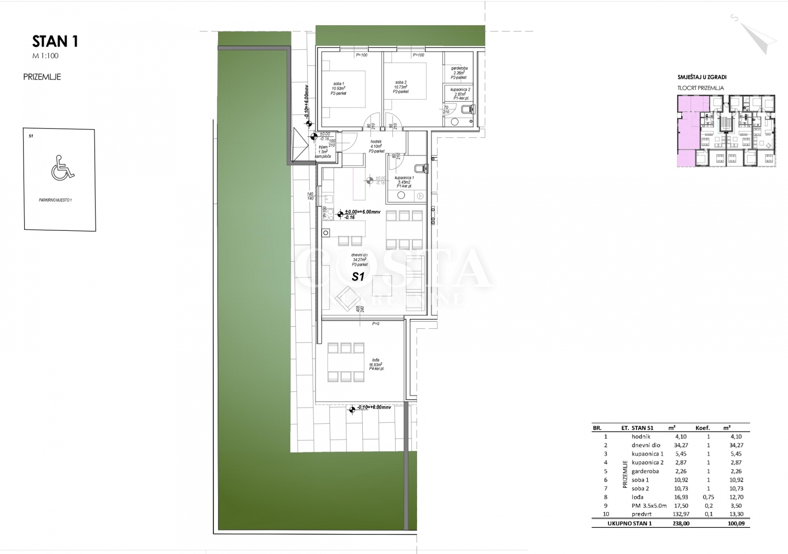
In Privlaka bei Zadar steht eine im Bau befindliche Wohnung zum Verkauf. Die 70,59 m² große Wohnung befindet sich im Erdgeschoss eines Wohngebäudes mit 10 Wohneinheiten. Sie besteht aus einem Wohnzimmer, einer Wohnküche, zwei Schlafzimmern, zwei
Mehr lesen
Objekt ID: 2909779
Preis: € 351.000
Nutzfläche: 0 m2
Gesamtfläche: 0 m2
Ziimmer insgesamt: 3
Schlafzimmer: 3
Badezimmer: 2
Nutzungsart: Wohnen
Provisionspflichtig: ja


















