Objektbeschreibung
Bezugsfertiges Wohnen nahe der Alten Donau
Willkommen im Projekt BEIM DONAUUFER, einem bereits fertiggestellten und sofort beziehbaren Wohnprojekt. Nur wenige Gehminuten vom Ufer der Alten Donau entfernt, vereint das Projekt naturnahe Erholung, zeitgemäße Architektur und eine ausgezeichnete Anbindung.
Die 92 hochwertigen Eigentumswohnungen, verteilt auf zwei Stiegen, bieten durchdachte Grundrisse, helle
Mehr lesen
Objekt ID: 2917448
Preis: € 295.900
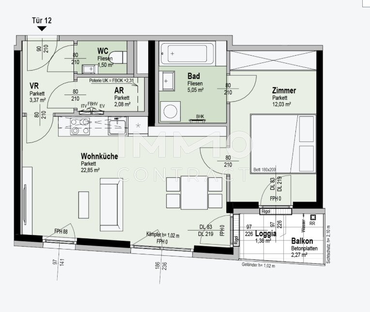
Nutzfläche: 48 m2
Gesamtfläche: 48 m2
Ziimmer insgesamt: 2
Schlafzimmer: 2
Badezimmer: 1
Nutzungsart: Anlage
Provisionspflichtig: ja
Provision: 3% des Kaufpreises zzgl. 20% USt.
HWB: 22,90 kWh/(m²*a)
HWB Klasse: A
FGEE: 0.71
E-Ausweis Gültig Bis:: 01.11.2033
Energieausweis Art: Bedarf
Anzahl Balkone: 1
Balkon/Terrassen - Fläche: 3
Beziehbar: sofort
Etage: 1. Etage / 1.OG
WC: 1
Abstellräume: 1
Balkon
barrierefrei
Neubau
Personenaufzug
Parkett
Badewanne
Fußbodenheizung
Fahrradraum
Abstellraum
rollstuhlgerecht
schlüsselfertig mit Bodenplatte
Fernwärme
schlüsselfertig mit Keller
seniorengerecht
Niedrigenergiehaus
Ähnliche Objekte
NEU | Exklusive Aktion – Küche inklusive | J...
€ 729.000
4
Schlafzimmer
2
Badezimmer
91 m2
Größe
April 24, 2026
Traumhafte, vollsanierte 3-Zimmer-Wohnung in...
€ 625.000
3
Schlafzimmer
1
Badezimmer
79 m2
Größe
April 24, 2026
Traumhafte, vollsanierte 5-Zimmer-Wohnung in...
€ 1.395.000
5
Schlafzimmer
2
Badezimmer
162 m2
Größe
April 24, 2026













