Objektbeschreibung
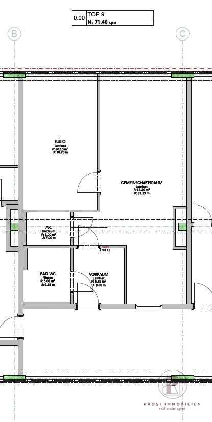
Die Top 9 im Obergeschoss mit Lift des Ärztezentrums in Feldkirchen bei Graz, Schlossweg 2, Einheit mit ca. 71 m² bestehend:
*
1 Raum ca. 20 m²
*
1 Gemeinschaftsraum ca. 38 m² mit möblierter Küche
*
Abstellraum
*
Bad/WC
*
Vorraum
Mehr lesen
Objekt ID: 2925139
Nutzfläche: 0 m2
Gesamtfläche: 0 m2
Ziimmer insgesamt: 2
Schlafzimmer: 2
Badezimmer: 1
Miete (netto) €: 1181.87
Nutzungsart: Gewerbe
Kaution: 3 Bruttomonatsmieten
HWB: 72,80 kWh/(m²*a)
Energieausweis Art: Bedarf
Beziehbar: ab sofort
Etage: EG
WC: 1
Abstellräume: 1
barrierefrei
Neubau
Personenaufzug
Freiplatz














