Objektbeschreibung
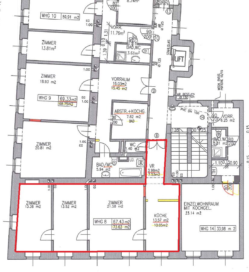
Diese 3-Zimmer-Wohnung im 18. Bezirk ist unbefristet vermietet. Die Nettomiete beträgt ca. 330 Euro. Der Mieter ist ca. 70 Jahre alt.
Die Wohnung verfügt über einen Vorraum, eine Küche, einem WC, ein Wohnzimmer sowie zwei Schlafzimmer. Ein Badezimmer gibt es nicht, eine Duschgelegenheit befindet sich in der Küche. Ein eigenes Kellerabteil ist der Wohnung zugewiesen.
Noch nichts gefunden? Wir informieren Sie über geeignete Immobilienangebote noch vor allen anderen.
Legen Sie jetzt Ihren individuellen Suchagenten unter folgendem Link an. Wir schicken Ihnen passende Immobilien exklusiv vorab zu.
Suchagent anlegen [https://levanto.service.immo/registrieren/de] – https://levanto.service.immo/registrieren/de
Wir weisen darauf hin, dass zwischen dem Vermittler und
Mehr lesen

















