Erweiterte Suche
Suchagent aktivieren
Exklusive Anzeigen

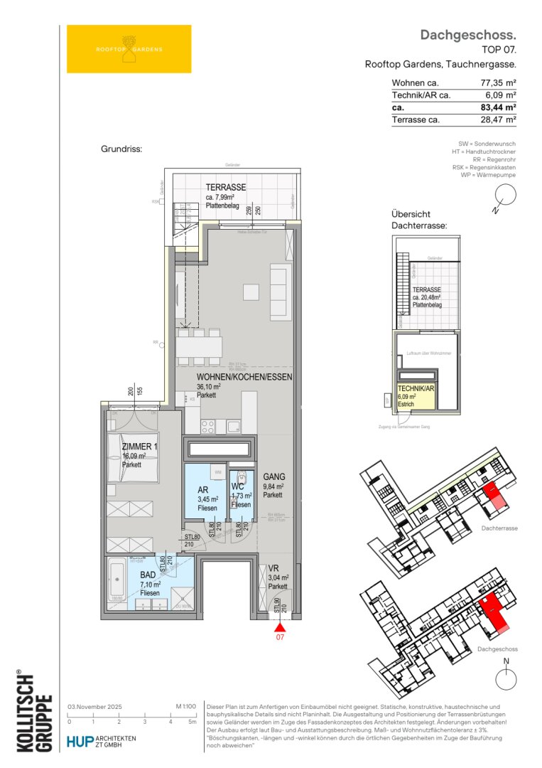
ROOFTOP GARDENS | Top 07 | Wohnen über den Dächern von Klosterneuburg.

€ 845.000,00

Tauchnergasse, ,

83.442 Zimmer
zu Favoriten hinzufügen
teilen
Suchergebnisse

Objektbeschreibung

ROOFTOP GARDENS.
Wohnen mit besten Aussichten.

Über den Dächern Klosterneuburgs entsteht ein Ort, der Weitblick mit Wohnqualität verbindet. In **ROOFTOP GARDENS** entfalten **zwölf exklusive Dachgeschoßwohnungen** ein Lebensgefühl, das Raum zum Aufblühen, Durchatmen und Ankommen schafft. Großzügige Verglasungen öffnen den Blick auf Wien, die umliegenden Weinberge und die historische Altstadt,
Mehr lesen

Adresse: Tauchnergasse
Bezirk:
Bundesland:
PLZ: 3400
Land: Österreich
Objekt ID: 2927962
Preis: € 845.000
Nutzfläche: 83 m2
Gesamtfläche: 0 m2
Ziimmer insgesamt: 2
Schlafzimmer: 2
Badezimmer: 0
Miete/m2 €: 10127.04
Nutzungsart: Wohnen
Provisionspflichtig: nein
Provision: Provision bezahlt der Abgeber.
HWB: 36,50 kWh/(m²*a)
HWB Klasse: B
FGEE: 0.37
E-Ausweis Gültig Bis:: 15.04.2034
Energieausweis Art: Bedarf
Balkon/Terrassen - Fläche: 28
Personenaufzug
Kabel/Sat-TV
Fahrradraum
Gartennutzung
seniorengerecht
Flachdach
A07_Grundriss_ROOFTOP GARDENS
A07_Grundriss_ROOFTOP GARDENS

Ähnliche Objekte

vergleichen
2zMD3XTNppv5ceBaIjYBFC

Sonnige 3- Zimmerwohnung mit Loggia in zentr...

€ 295.000
3
Schlafzimmer
1
Badezimmer
70 m2
Größe
April 26, 2026
vergleichen
712reqKz2X1aRzsWyuSWyH

76qm-3Zi-Wohnung mit Balkon in Grünruhelage ...

€ 255.000
3
Schlafzimmer
1
Badezimmer
76 m2
Größe
vergleichen
Terrasse

Gärtchen in der Stadt!

€ 225.000
2
Schlafzimmer
1
Badezimmer
68 m2
Größe

Vergleichen