Objektbeschreibung
ROOFTOP GARDENS.
Wohnen mit besten Aussichten.
Über den Dächern Klosterneuburgs entsteht ein Ort, der Weitblick mit Wohnqualität verbindet. In **ROOFTOP GARDENS** entfalten **zwölf exklusive Dachgeschoßwohnungen** ein Lebensgefühl, das Raum zum Aufblühen, Durchatmen und Ankommen schafft. Großzügige Verglasungen öffnen den Blick auf Wien, die umliegenden Weinberge und die historische Altstadt,
Mehr lesen
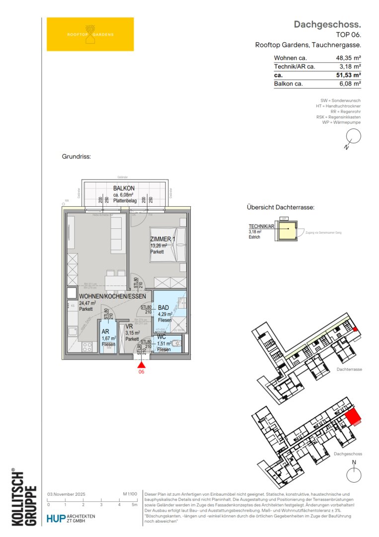
Adresse: Tauchnergasse
Ort: Klosterneuburg
Bezirk: 3400
Bundesland: Niederösterreich
PLZ: 3400
Land: Österreich
Objekt ID: 2927965
Preis: € 449.000
Nutzfläche: 52 m2
Gesamtfläche: 0 m2
Ziimmer insgesamt: 2
Schlafzimmer: 2
Badezimmer: 0
Miete/m2 €: 8713.37
Nutzungsart: Wohnen
Provisionspflichtig: nein
Provision: Provision bezahlt der Abgeber.
HWB: 36,50 kWh/(m²*a)
HWB Klasse: B
FGEE: 0.37
E-Ausweis Gültig Bis:: 15.04.2034
Energieausweis Art: Bedarf
Balkon/Terrassen - Fläche: 6
Personenaufzug
Kabel/Sat-TV
Fahrradraum
Gartennutzung
seniorengerecht
Flachdach
Ähnliche Objekte
Sonnige 3- Zimmerwohnung mit Loggia in zentr...
€ 295.000
3
Schlafzimmer
1
Badezimmer
70 m2
Größe
April 26, 2026
76qm-3Zi-Wohnung mit Balkon in Grünruhelage ...
€ 255.000
3
Schlafzimmer
1
Badezimmer
76 m2
Größe
April 23, 2026





