Erweiterte Suche
Suchagent aktivieren
Exklusive Anzeigen

NEUES DOPPELHAUS MIT GARTEN IN DER NÄHE DES ZENTRUMS UND DES MEERS

€ 487.000,00

,

4 Zimmer
zu Favoriten hinzufügen
teilen
Suchergebnisse

Objektbeschreibung

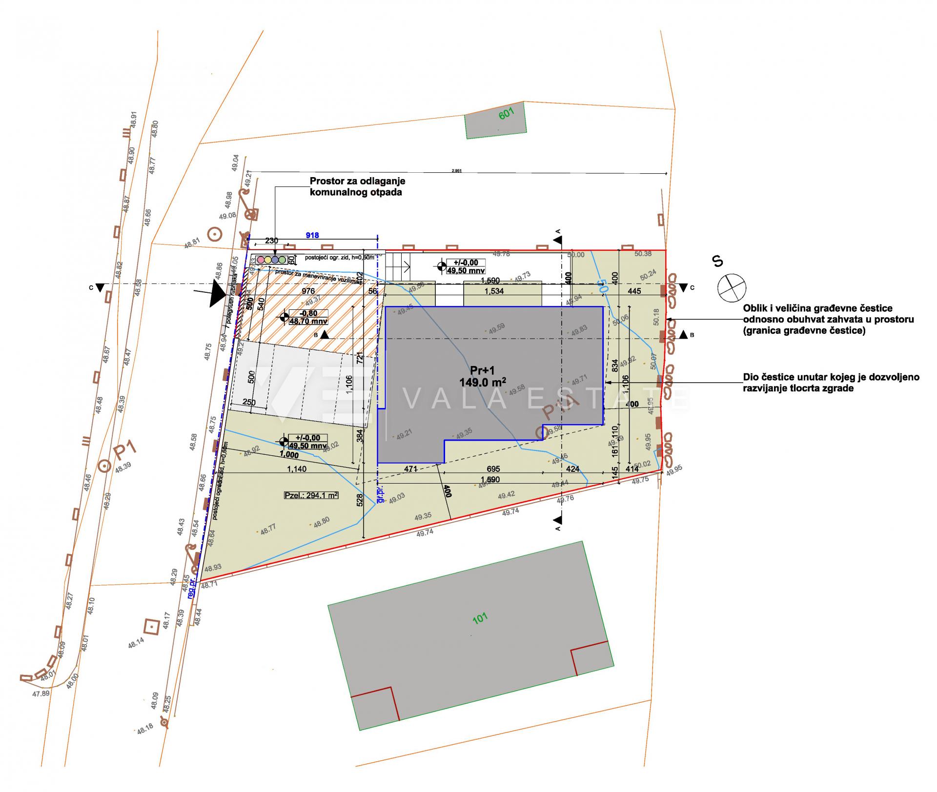
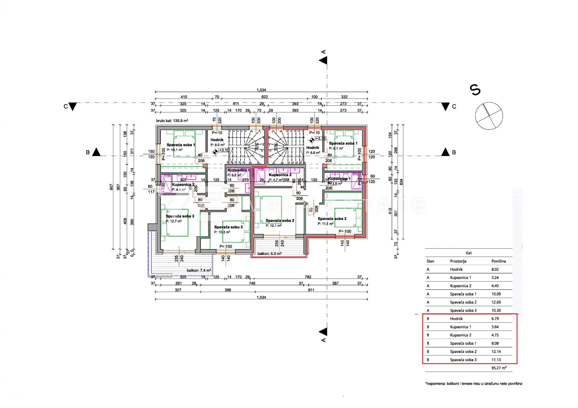
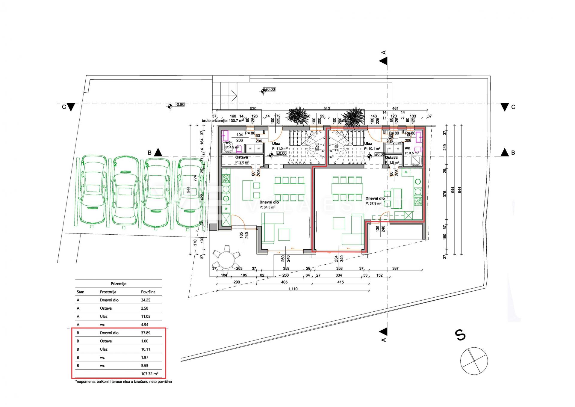
Immobilienangebot auf der Insel Krk, Malinska – ein modernes Doppelhaus in bester Lage, nur 700 m vom Meer und dem Ortszentrum entfernt. Das Haus bietet 122,81 m² Wohnfläche, verteilt auf Erdgeschoss und Obergeschoss, die durch eine Innentreppe verbunden sind. Im Erdgeschoss befinden sich Eingangsbereich, Gäste-WC, Speisekammer, Wohnküche und Wohnzimmer mit
Mehr lesen

Bezirk:
PLZ: 51511
Land: Croatia
Objekt ID: 2930104
Preis: € 487.000
Nutzfläche: 0 m2
Gesamtfläche: 110 m2
Ziimmer insgesamt: 4
Schlafzimmer: 4
Badezimmer: 2
Nutzungsart: Wohnen
Provisionspflichtig: ja
WC: 3

Ähnliche Objekte

vergleichen
1745844153 whatsapp slika 2025 04 28 u 10 1

Malinska, Doppelhaushälfte

€ 485.000
4
Schlafzimmer
3
Badezimmer
April 24, 2026
vergleichen
1745844153 whatsapp slika 2025 04 28 u 10

Malinska, Doppelhaushälfte

€ 485.000
4
Schlafzimmer
3
Badezimmer
April 24, 2026
vergleichen
1746023198 img 20250430 wa0048

Malinska, Doppelhaushälfte mit Pool

€ 670.000
4
Schlafzimmer
4
Badezimmer
April 24, 2026

Vergleichen