Objektbeschreibung
Das moderne Bauträgerprojekt in der Franz-Schöpfer-Gasse in 8570 Voitsberg zeichnet sich durch seine durchdachten Grundrisse, dem modernen Design und die perfekte Infrastruktur aus.
Für all jene Menschen, die KLASSE, statt MASSE bevorzugen ist dieses Projekt genau das Richtige !!!
Nur 5 Wohneinheiten in Objekt I und eine Wohneinheit im Baukörper
Mehr lesen
Objekt ID: 2935626
Preis: € 910.000
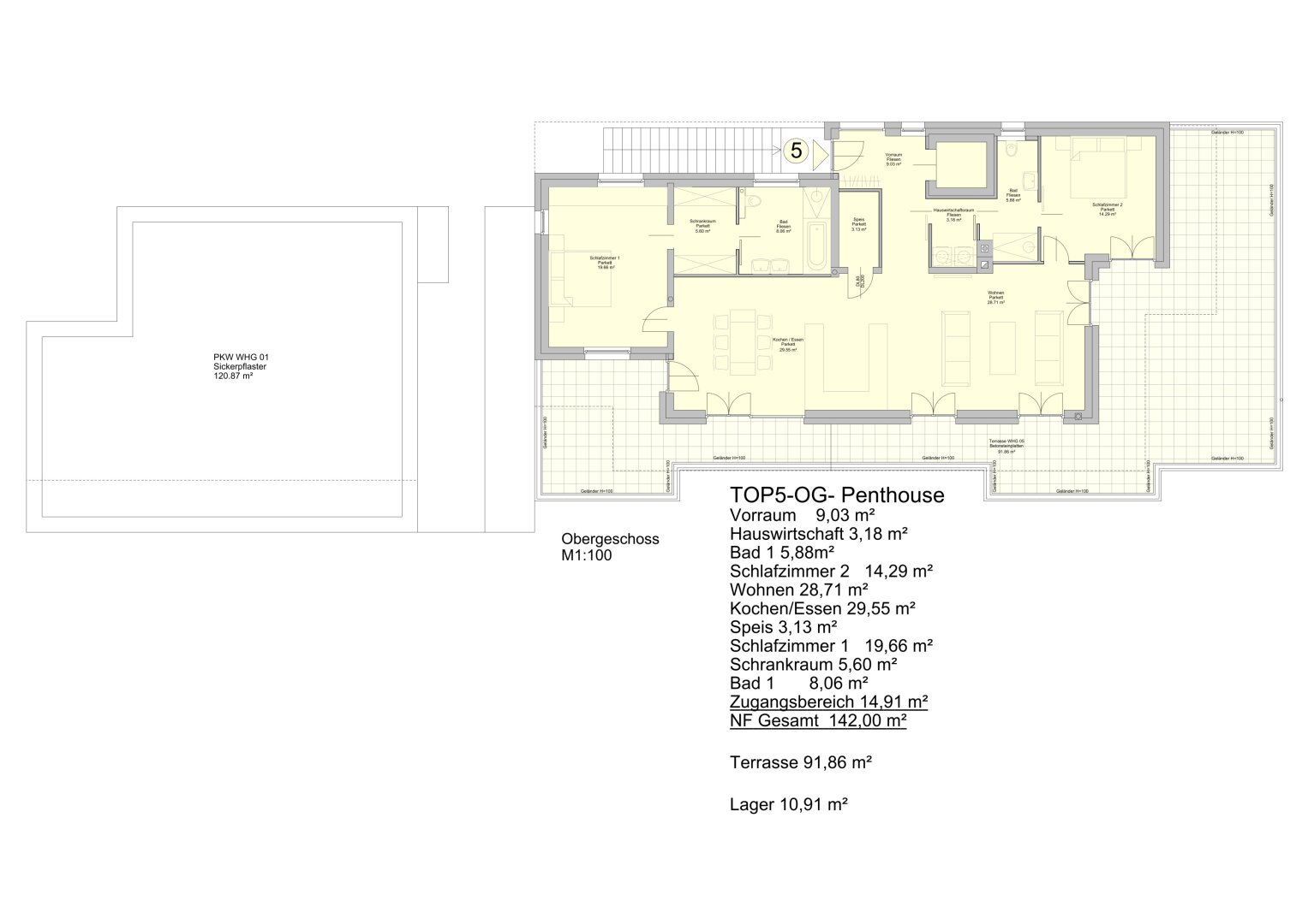
Nutzfläche: 142 m2
Gesamtfläche: 0 m2
Ziimmer insgesamt: 3
Schlafzimmer: 3
Badezimmer: 2
Nutzungsart: Wohnen
Provisionspflichtig: ja
Provision: 32.760,00 € inkl. 20% USt.
HWB: 63 kWh/(m²*a)
HWB Klasse: C
FGEE: 0.81
E-Ausweis Gültig Bis:: 17.11.2030
Energieausweis Art: Bedarf
Balkon/Terrassen - Fläche: 91
WC: 1
Abstellräume: 1
Neubau
Dusche
Fußbodenheizung
Rollläden
Massiv
Massivbauweise
vollerschlossen
Fernwärme
schlüsselfertig mit Keller
Räume veränderbar
Flachdach
Fertigparkett
Ähnliche Objekte
Familienfreundliche 4-Zimmer-Wohnung – Koffe...
€ 163.000
4
Schlafzimmer
1
Badezimmer
95 m2
Größe
April 19, 2026
Zentrale 3-Zimmer-Wohnung mit Balkon in Voit...
€ 89.000
3
Schlafzimmer
1
Badezimmer
60 m2
Größe
April 16, 2026
Renovierungsbedürftige Wohnung mit schöner A...
€ 165.000
4
Schlafzimmer
1
Badezimmer
95 m2
Größe
April 14, 2026


















