Objektbeschreibung
Der Frühling lässt die Prozentknospen sprießen: Beim Kauf einer Eigentumswohnung in einem unserer Objekte in der Berresgasse (Jonas am Feld [https://www.bwsg.at/projekt/jonas-am-feld-wohnen-am-badeteich-hirschstetten/], Gretls Garten [https://www.bwsg.at/projekt/gretls-garten-wohnen-beim-badeteich-hirschstetten/] oder Leo am Teich [https://www.bwsg.at/projekt/leo-am-teich-wohnen-am-wasser/]) bis 30. Juni 2026 die Nebenkosten* sparen und jede Wohnung um 6,5 % günstiger erwerben.
Jetzt schnell sein und noch bis 30.06. von der temporären Gebührenbefreiung** profitieren!
Mehr lesen
Objekt ID: 2945850
Preis: € 350.429.35
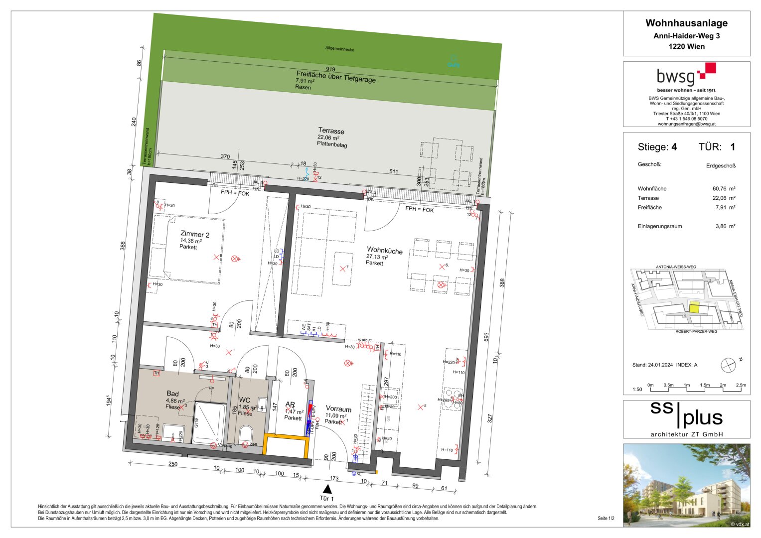
Nutzfläche: 61 m2
Gesamtfläche: 91 m2
Ziimmer insgesamt: 2
Schlafzimmer: 2
Badezimmer: 1
Nutzungsart: Wohnen
Provisionspflichtig: ja
Provision: Provision bezahlt der Abgeber.
HWB: 35,30 kWh/(m²*a)
HWB Klasse: B
FGEE: 0.77
Energieausweis Art: Bedarf
Balkon/Terrassen - Fläche: 22
Etage: EG / Erdgeschoss
WC: 1
Abstellräume: 1
Personenaufzug
Parkett
Dusche
Fußbodenheizung
Kabel/Sat-TV
Fahrradraum
Abstellraum
Rollläden
Fernwärme
Tiefgarage
Ähnliche Objekte
Erstbezug am Mühlwasser – 2-Zimmer-Dachgesch...
€ 299.000
2
Schlafzimmer
1
Badezimmer
52 m2
Größe
April 29, 2026
Gemütliche 3-Zimmer-Wohnung mit Loggia in 12...
€ 239.000
3
Schlafzimmer
1
Badezimmer
74 m2
Größe
April 29, 2026
Gretls Garten – Residieren im Herzen v...
€ 295.796.43
2
Schlafzimmer
1
Badezimmer
63 m2
Größe
April 29, 2026











