Objektbeschreibung
Wohntraum im Herzen des Donaufeldes – An der Schanze 25 – Kaufen auf Eigengrund – PROVISIONSFREI
Inmitten des Donaufeldes entsteht eine Oase der Ruhe mit in Summe 212 exklusiven Wohnungen, welche sich auf vier Gebäudekörper aufteilen. Die Wohnhausanlage liegt in einem autoreduzierten Gebiet nur unweit der Alten Donau und
Mehr lesen
Objekt ID: 2946411
Preis: € 439.000
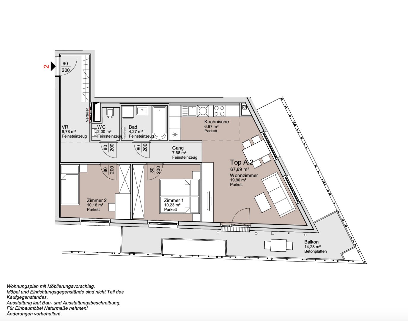
Nutzfläche: 68 m2
Gesamtfläche: 82 m2
Ziimmer insgesamt: 3
Schlafzimmer: 3
Badezimmer: 1
Nutzungsart: Wohnen
Provisionspflichtig: ja
Provision: Provision bezahlt der Abgeber.
HWB: 22,40 kWh/(m²*a)
HWB Klasse: B
FGEE: 0.8
Energieausweis Art: Bedarf
Anzahl Balkone: 1
Balkon/Terrassen - Fläche: 14
Beziehbar: Herbst 2026
Etage: 1. Etage / 1. Liftstock
WC: 1
Balkon
Neubau
Personenaufzug
Badewanne
Fußbodenheizung
Kabel/Sat-TV
Fahrradraum
offene Küche
Abstellraum
Offene Küche
Klimaanlage
Estrich
Fernwärme
Tiefgarage
Ähnliche Objekte
Hofseitige 2-Zimmer-Wohnung mit großzügigem ...
€ 285.500
2
Schlafzimmer
1
Badezimmer
43 m2
Größe
April 30, 2026


















