Erweiterte Suche
Suchagent aktivieren
Exklusive Anzeigen

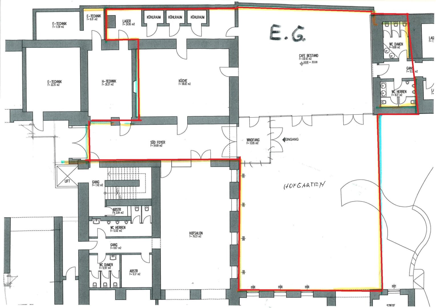
Restaurant sucht neuen Gastgeber- Einzigartige Gastronomiefläche in der historischen Lederfabrik in Linz

Leonfeldner Straße 328, ,

zu Favoriten hinzufügen
teilen
Suchergebnisse

Objektbeschreibung

In der historischen Lederfabrik in Linz gelangt eine außergewöhnliche Gastronomiefläche zur Vermietung. Das Objekt verbindet historischen Charme mit modernen Nutzungsmöglichkeiten und bietet ideale Voraussetzungen für ein erfolgreiches Gastronomiekonzept.

Gesucht wird ein gastronomisches Konzept mit gutbürgerlicher oder mediterraner Küche, das sich harmonisch in das besondere Ambiente der historischen Lederfabrik einfügt.

Ein
Mehr lesen

Adresse: Leonfeldner Straße 328
Ort:
Bezirk:
Bundesland:
PLZ: 4040
Land: Österreich
Objekt ID: 2947919
Nutzfläche: 0 m2
Gesamtfläche: 672 m2
Ziimmer insgesamt: 0
Schlafzimmer: 0
Badezimmer: 0
Nutzungsart: Gewerbe
Kaution: 3 Bruttomonatsmieten
HWB: 60 kWh/(m²*a)
FGEE: 1.2
Energieausweis Art: Bedarf

Vergleichen