Objektbeschreibung
Vielseitige Gewerbehalle mit Büro und Lager im Zentrum von Kufstein!
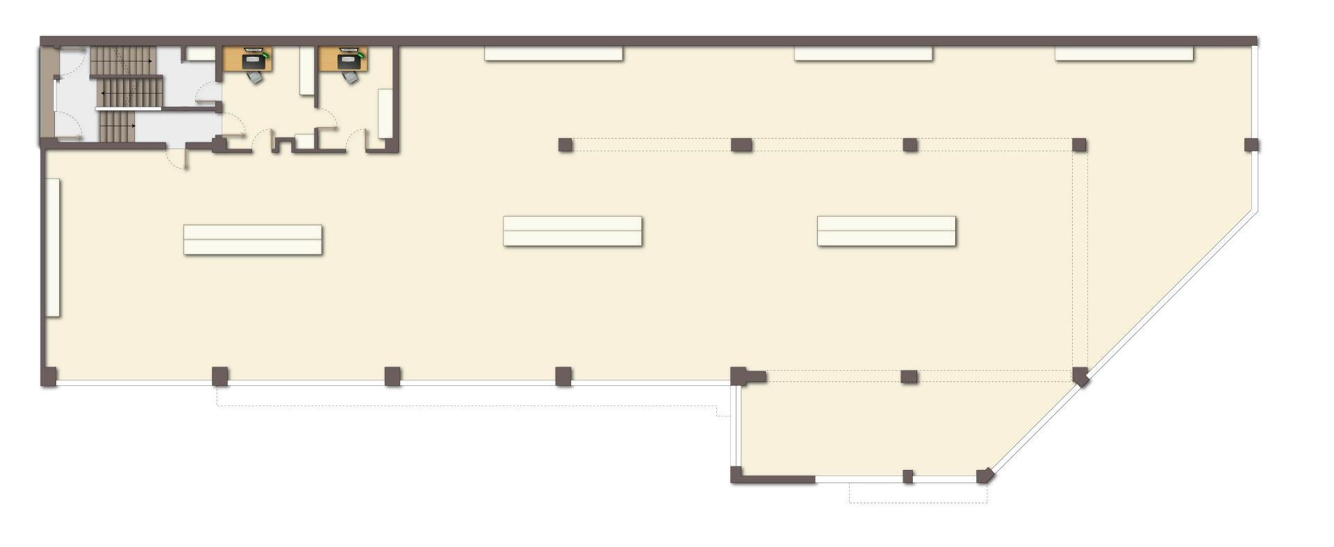
Im Herzen von Kufstein befindet sich diese großzügige Werkshalle mit Lagerflächen und optimaler LKW-Infrastruktur. Diese Gewerbeimmobilie bietet auf ca. 1050 Quadratmetern eine multifunktionale Nutzungsmöglichkeit für Unternehmen aus Industrie, Handwerk, Logistik oder Handel. Dank der zentralen Lage ist eine exzellente Anbindung
Mehr lesen
Dokumente
Objekt ID: 2951645
Nutzfläche: 0 m2
Gesamtfläche: 1.052 m2
Ziimmer insgesamt: 0
Schlafzimmer: 0
Badezimmer: 0
Miete (netto) €: 1279.1
USt €: 859.65
Nutzungsart: Gewerbe
Provisionspflichtig: ja
Kaution: 24.000,00 €
HWB: 133,50 kWh/(m²*a)
HWB Klasse: E
FGEE: 2.06
Energieausweis Art: Bedarf
Beziehbar: ab sofort










