Objektbeschreibung
Familienfreundliches Reihenhaus mit Garten in ruhiger Lage
In einer angenehmen, ruhigen Wohngegend in Nöchling wartet dieses moderne Reihenhaus auf seine neuen Bewohner. Die ländliche Umgebung bietet viel Lebensqualität für Familien: Kindergarten, Schule und Einkaufsmöglichkeiten befinden sich im Ort und sind gut erreichbar. Gleichzeitig laden zahlreiche Wanderwege und der nahegelegene Badeteich
Mehr lesen
Objekt ID: 2956674
Preis: € 1.110.49
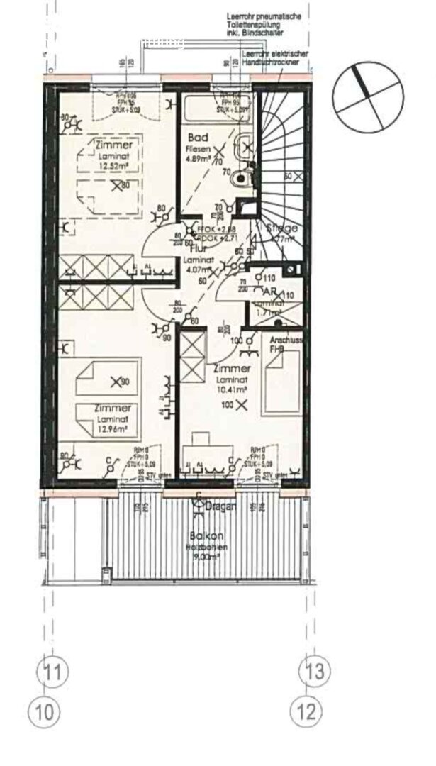
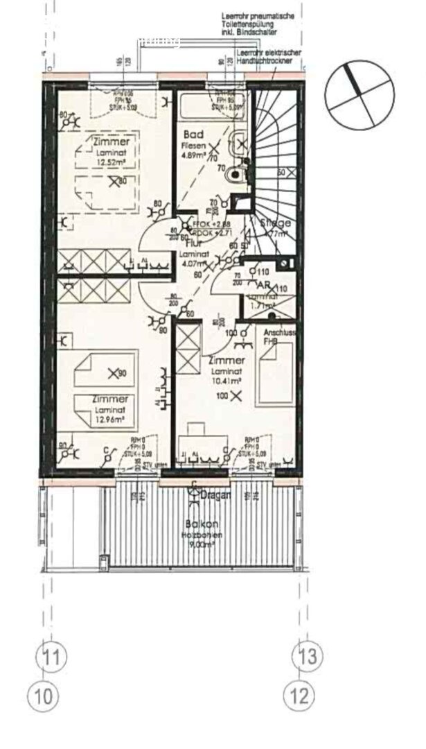
Nutzfläche: 95 m2
Gesamtfläche: 0 m2
Ziimmer insgesamt: 4
Schlafzimmer: 4
Badezimmer: 2
Miete (netto) €: 1110.49
Gesamtbelastung €: 1110.49
Nutzungsart: Wohnen
Provisionspflichtig: nein
HWB: 44,40 kWh/(m²*a)
HWB Klasse: B
FGEE: 0.6
E-Ausweis Gültig Bis:: 27.05.2035
Energieausweis Art: Bedarf
Anzahl Balkone: 1
Balkon/Terrassen - Fläche: 18
Beziehbar: sofort
Max. Mietdauer: unbefristet
WC: 2
Abstellräume: 2
Balkon
Neubau
WG-geeignet
Gäste-WC
Bad mit Fenster
Laminat
Freiplatz
Flachdach















