Objektbeschreibung
Ihr neues Zuhause in Simmering — modern, ruhig, provisionsfrei
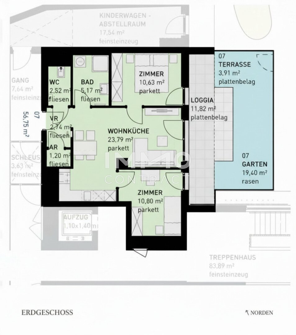
Im lebendigen Wiener Bezirk Simmering entsteht ein zeitgemäßes Wohnbauprojekt mit 82 freifinanzierten Eigentumswohnungen — provisionsfrei für Käufer. Das fünfgeschossige Gebäude bietet durchdachte 2‑ und 3‑Zimmer‑Einheiten mit Wohnflächen von ca. 39 bis 62 m². Jede Wohnung verfügt über eine private Freifläche (Loggia,
Mehr lesen
Objekt ID: 2958819
Preis: € 299.500
Nutzfläche: 57 m2
Gesamtfläche: 57 m2
Ziimmer insgesamt: 3
Schlafzimmer: 3
Badezimmer: 0
Nutzungsart: Wohnen
Provisionspflichtig: ja
Provision: provisionsfrei
HWB: 30,30 kWh/(m²*a)
HWB Klasse: B
FGEE: 0.75
E-Ausweis Gültig Bis:: 19.10.2033
Energieausweis Art: Bedarf
Balkon/Terrassen - Fläche: 15
Beziehbar: Ende 2028
Etage: EG / Erdgeschoss
Neubau
Personenaufzug
Parkett
Fußbodenheizung
Fahrradraum
offene Küche
Offene Küche
Luft-Wärmepumpe
Massiv
Massivbauweise
schlüsselfertig mit Keller
Tiefgarage
Flachdach
Ähnliche Objekte
Dachgeschoßwohnung mit Potenzial | Balkon | ...
€ 549.000
3
Schlafzimmer
1
Badezimmer
87 m2
Größe
April 29, 2026











