Objektbeschreibung
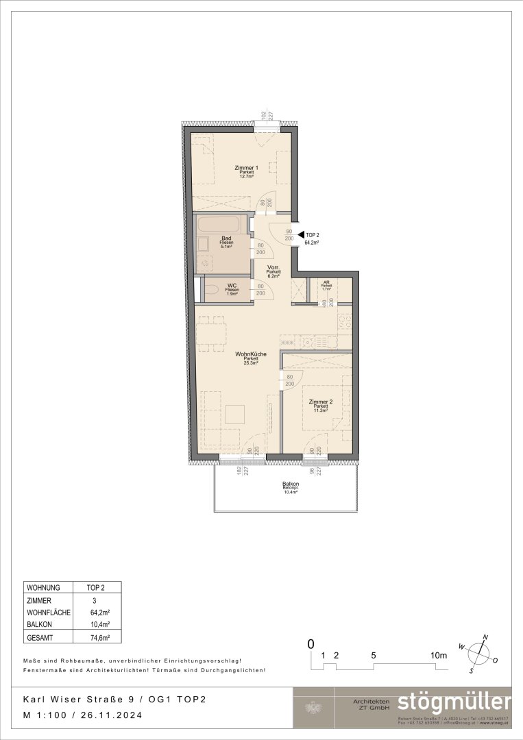
Willkommen in Ihrem neuen Zuhause im Herzen von Linz! Diese attraktive Wohnung befindet sich in der begehrten 1. Etage eines gepflegten Mehrfamilienhauses in der beliebten Adresse 4020 Linz. Mit einer Gesamtfläche von 64,2 m² bietet diese Wohnung ausreichend Platz für Singles, Paare oder kleine Familien, die Wert auf Komfort und
Mehr lesen
Adresse: Karl-Wiser-Straße 9/ Top 02
Ort: Linz
Bezirk: 4020
Bundesland: Oberösterreich
PLZ: 4020
Land: Österreich
Objekt ID: 2960816
Preis: € 1.176.37
Nutzfläche: 64 m2
Gesamtfläche: 0 m2
Ziimmer insgesamt: 3
Schlafzimmer: 3
Badezimmer: 1
Miete (netto) €: 834.6
USt €: 106.94
Gesamtbelastung €: 1176.37
Nutzungsart: Wohnen
Provisionspflichtig: nein
Kaution: 4.135,00 €
Anzahl Balkone: 1
Balkon/Terrassen - Fläche: 10
Beziehbar: ab sofort bzw. nach Vereinbarung
Etage: 1. Etage
WC: 1
Balkon
barrierefrei
Ähnliche Objekte
Helle 1-Zimmer Wohnung mit Klimaanlage in Li...
€ 556.74
1
Schlafzimmer
1
Badezimmer
35 m2
Größe
April 30, 2026
TOLLE WOHNUNG IN PREMIUM LAGE – MAISON...
€ 1.781.04
3
Schlafzimmer
2
Badezimmer
118 m2
Größe
April 30, 2026









