Objektbeschreibung
Mit dem Projekt „Zur Schönen Agnes“ entsteht ein hochwertiges Neubauensemble in einer der traditionsreichsten Wohnlagen des 19. Wiener Gemeindebezirks. Die Architektur greift Elemente des Wiener Biedermeiers auf und verbindet diese mit hohen Anforderungen an Energieeffizienz und hochwertig ausgeführter Neubauweise.
Begrünte Arkadengänge, großzügige private Freiflächen und ein nachhaltiges Energiekonzept prägen das Erscheinungsbild des Projekts.
Mehr lesen
Objekt ID: 2966855
Preis: € 1.350.000
Nutzfläche: 133 m2
Gesamtfläche: 122 m2
Ziimmer insgesamt: 5
Schlafzimmer: 5
Badezimmer: 1
Nutzungsart: Wohnen
Provisionspflichtig: ja
Provision: 0% des Kaufpreises zzgl. 20% USt.
HWB: 36,45 kWh/(m²*a)
HWB Klasse: B
FGEE: 0.79
E-Ausweis Gültig Bis:: 10.02.2029
Energieausweis Art: Bedarf
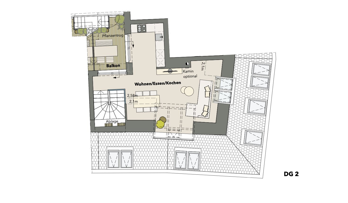
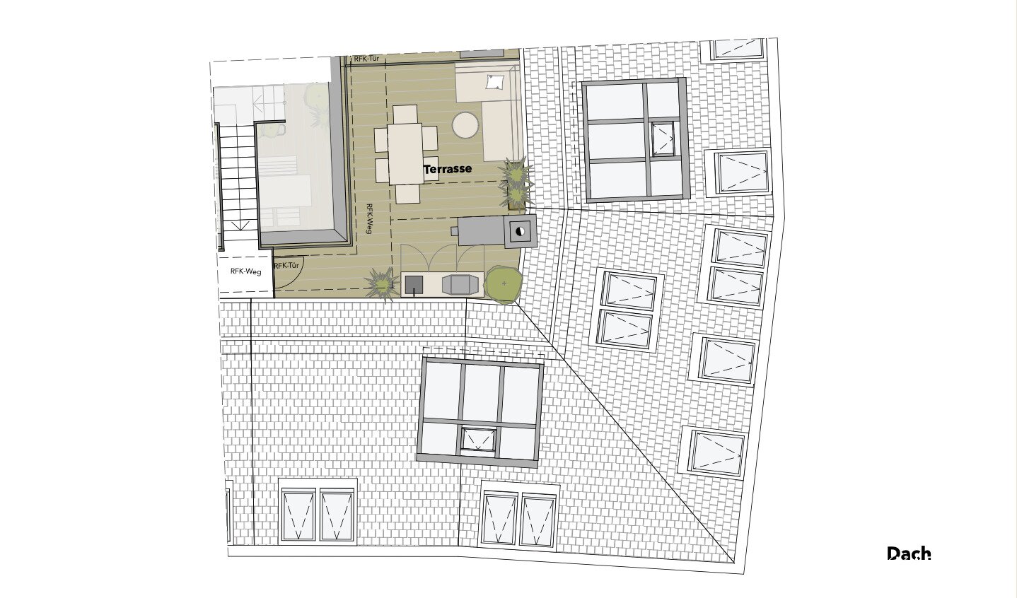
Anzahl Balkone: 1
Balkon/Terrassen - Fläche: 29
Beziehbar: sofort
Etage: DG1 + DG2
WC: 1
Abstellräume: 2
Balkon
Neubau
Personenaufzug
Gäste-WC
Parkett
Badewanne
Fußbodenheizung
Fahrradraum
offene Küche
Abstellraum
Offene Küche
Klimaanlage
Massiv
Massivbauweise
Tiefgarage
DV-Verkabelung
Neubaustandard
Erdwärme
Ähnliche Objekte
Tolle 2-Zimmerwohnung mit Eigengarten I Nähe...
€ 349.000
2
Schlafzimmer
1
Badezimmer
61 m2
Größe
Mai 2, 2026
Stuwerviertel | Moderne Wohnungen im revital...
€ 450.000
3
Schlafzimmer
1
Badezimmer
57 m2
Größe
Mai 2, 2026
Stuwerviertel | Moderne Wohnungen im revital...
€ 250.000
2
Schlafzimmer
1
Badezimmer
32 m2
Größe
Mai 2, 2026















