Objektbeschreibung
Ihr Zuhause zwischen Stadt und Natur
Angrenzend an ein bestehendes Bauvorhaben erweitert das Projekt das Quartier um 80 freifinanzierte, provisionsfreie Eigentumswohnungen sowie 37 PKW-Tiefgaragenstellplätze. Die gut geplanten zwei und drei Zimmer Grundrisse mit Wohnflächen von ca. 34 bis 87 m² decken unterschiedliche Lebenssituationen ab und bieten praxisorientierte Raumaufteilungen. Jede Einheit verfügt über eine private
Mehr lesen
Objekt ID: 2970291
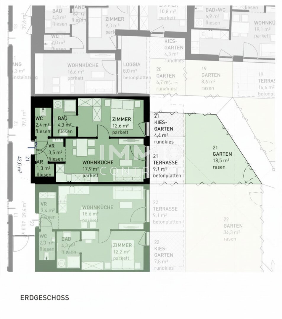
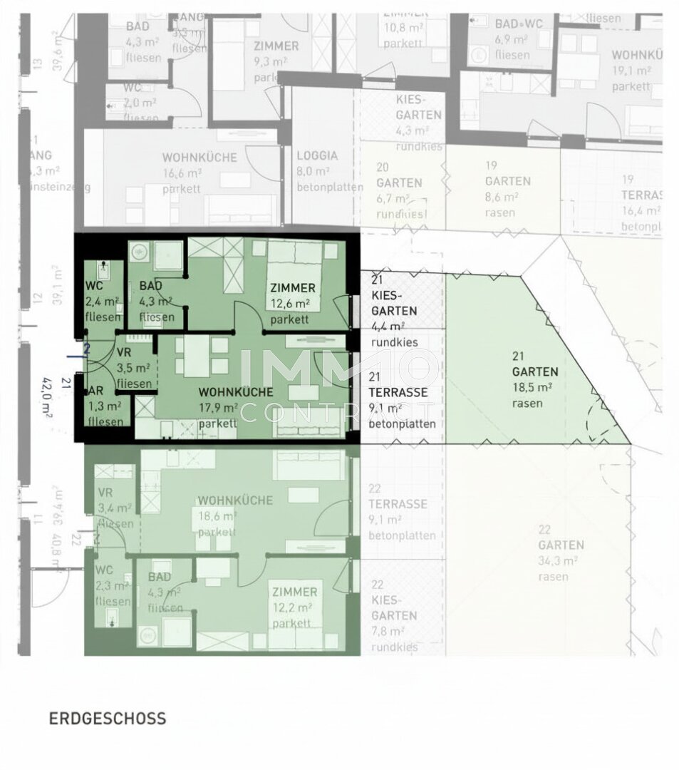
Preis: € 281.500
Nutzfläche: 42 m2
Gesamtfläche: 42 m2
Ziimmer insgesamt: 2
Schlafzimmer: 2
Badezimmer: 0
Nutzungsart: Wohnen
Provisionspflichtig: ja
Provision: Provisionsfrei
HWB: 34,30 kWh/(m²*a)
HWB Klasse: B
FGEE: 0.74
E-Ausweis Gültig Bis:: 21.06.2033
Energieausweis Art: Bedarf
Balkon/Terrassen - Fläche: 9
Beziehbar: 30.06.2028
Etage: EG / Erdgeschoss
Neubau
Personenaufzug
Gäste-WC
Fußbodenheizung
Fahrradraum
offene Küche
Offene Küche
Luft-Wärmepumpe
Massiv
Massivbauweise
Estrich
Gartennutzung
Tiefgarage
Flachdach
Neubaustandard
Ähnliche Objekte
Erstbezug – Design-Domizil mit Dachter...
€ 1.070.000
4
Schlafzimmer
2
Badezimmer
132 m2
Größe
April 29, 2026












