Objektbeschreibung
Ihr Zuhause zwischen Stadt und Natur
Angrenzend an ein bestehendes Bauvorhaben erweitert das Projekt das Quartier um 80 freifinanzierte, provisionsfreie Eigentumswohnungen sowie 37 PKW-Tiefgaragenstellplätze. Die gut geplanten zwei und drei Zimmer Grundrisse mit Wohnflächen von ca. 34 bis 87 m² decken unterschiedliche Lebenssituationen ab und bieten praxisorientierte Raumaufteilungen. Jede Einheit verfügt über eine private
Mehr lesen
Objekt ID: 2970353
Preis: € 299.500
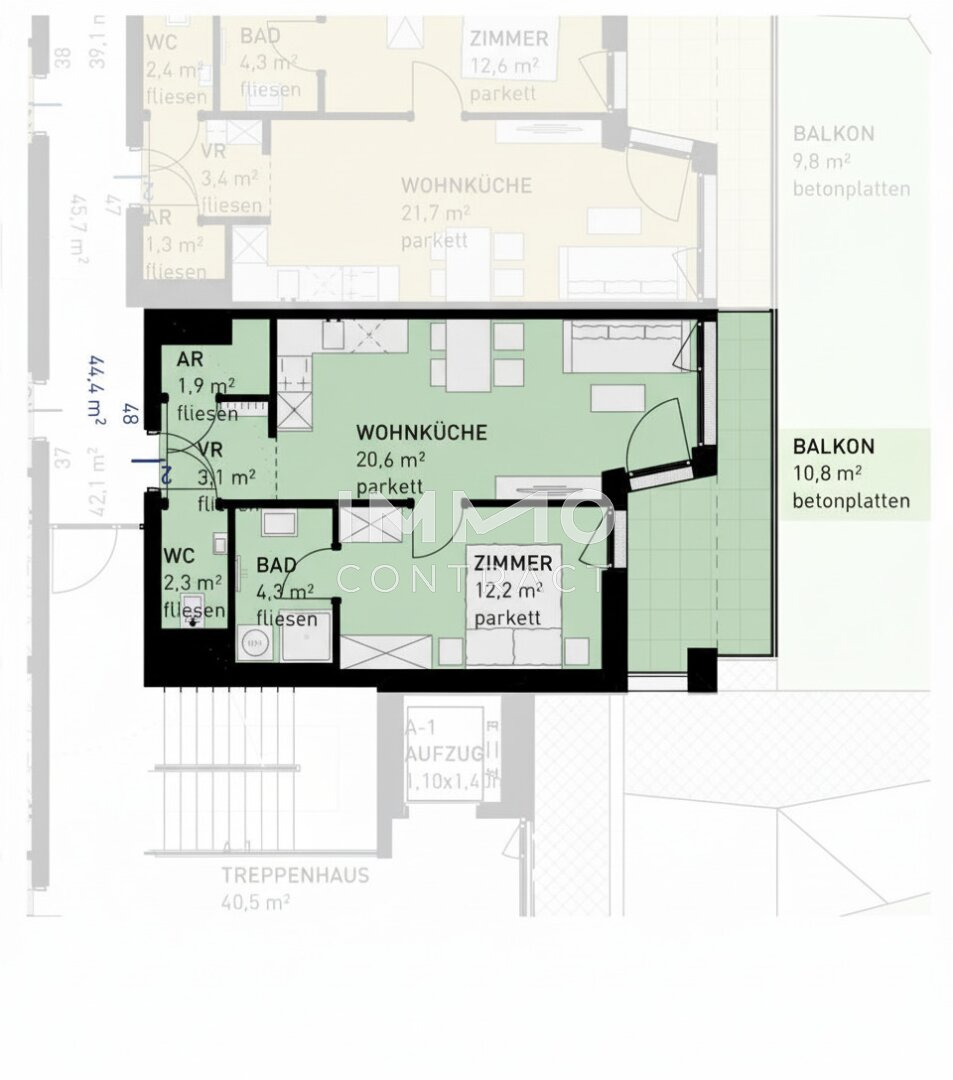
Nutzfläche: 44 m2
Gesamtfläche: 44 m2
Ziimmer insgesamt: 2
Schlafzimmer: 2
Badezimmer: 0
Nutzungsart: Wohnen
Provisionspflichtig: ja
Provision: Provisionsfrei
HWB: 34,30 kWh/(m²*a)
HWB Klasse: B
FGEE: 0.74
E-Ausweis Gültig Bis:: 21.06.2033
Energieausweis Art: Bedarf
Anzahl Balkone: 1
Balkon/Terrassen - Fläche: 10
Beziehbar: 30.06.2028
Etage: 1. Etage / 1. Obergeschoss
Balkon
Neubau
Personenaufzug
Gäste-WC
Fußbodenheizung
Fahrradraum
offene Küche
Offene Küche
Luft-Wärmepumpe
Massiv
Massivbauweise
Estrich
Gartennutzung
Tiefgarage
Flachdach
Neubaustandard
Ähnliche Objekte
Hacking I Neubauprojekt I 3 Zimmer mit Terra...
€ 965.000
3
Schlafzimmer
1
Badezimmer
76 m2
Größe
April 29, 2026
Erstbezug I Traumhafte Gartenwohnung Nähe La...
€ 885.000
2
Schlafzimmer
1
Badezimmer
67 m2
Größe
April 29, 2026
Traumhafte Terrassenwohnung im Neubauprojekt...
€ 965.000
3
Schlafzimmer
1
Badezimmer
76 m2
Größe
April 29, 2026



![Traumhafte Terrassenwohnung im Neubauprojekt [A] 7CJnnn9d0tYoYyoKyWWDSX 4](https://gesucht-gefunden.at/wp-content/uploadstorage/2026/04/7CJnnn9d0tYoYyoKyWWDSX-4-525x350.jpg)








