Objektbeschreibung
Eigentumswohnungen mit Freiflächen in der Donaustadt
Modernes Wohnen mit Freiraum – im 22. Wiener Gemeindebezirk entsteht ein Wohnprojekt, das durch klare Architektur, private Außenflächen und eine angenehme Wohnlage überzeugt.
Die Wohnhausanlage umfasst 65 Eigentumswohnungen sowie zwei Geschäftslokale und bietet ein vielseitiges Wohnangebot für unterschiedliche Lebenssituationen – von kompakten Wohnungen für
Mehr lesen
Objekt ID: 2982792
Preis: € 383.500
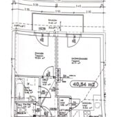
Nutzfläche: 52 m2
Gesamtfläche: 0 m2
Ziimmer insgesamt: 2
Schlafzimmer: 2
Badezimmer: 1
Nutzungsart: Wohnen
Provisionspflichtig: nein
Provision: provisionsfrei
HWB: 31,60 kWh/(m²*a)
HWB Klasse: B
FGEE: 0.73
E-Ausweis Gültig Bis:: 13.09.2032
Energieausweis Art: Bedarf
Balkon/Terrassen - Fläche: 32
Beziehbar: 30.03.2026
WC: 1
Abstellräume: 1
Neubau
Personenaufzug
Parkett
Fußbodenheizung
Garage
Luft-Wärmepumpe
Massiv
Massivbauweise
schlüsselfertig mit Keller
Flachdach
Ähnliche Objekte
Grünruhelage I Gartenwohnung I Hacking [A\]
€ 1.635.000
4
Schlafzimmer
2
Badezimmer
114 m2
Größe
März 15, 2026
Dachwohnung mit Terrasse I Erstbezug A\
€ 1.095.000
3
Schlafzimmer
2
Badezimmer
88 m2
Größe
März 15, 2026

![Wohnprojekt Nähe Lainzer Tiergarten [A] 6gsoYTiuBpfTK5DqHEhuup 3](https://gesucht-gefunden.at/wp-content/uploadstorage/2026/03/6gsoYTiuBpfTK5DqHEhuup-3-525x350.jpg)
![Grünruhelage I Gartenwohnung I Hacking [A] 367fg4aoR0nhvFP7uVCgpa 1](https://gesucht-gefunden.at/wp-content/uploadstorage/2026/03/367fg4aoR0nhvFP7uVCgpa-1-525x350.jpg)







