Objektbeschreibung
Ihr Rückzugsort in Nöchling – geförderte 2-Zimmer-Wohnung mit eigenem Badeteich
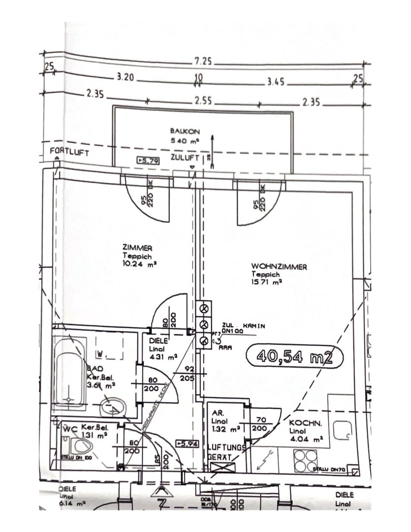
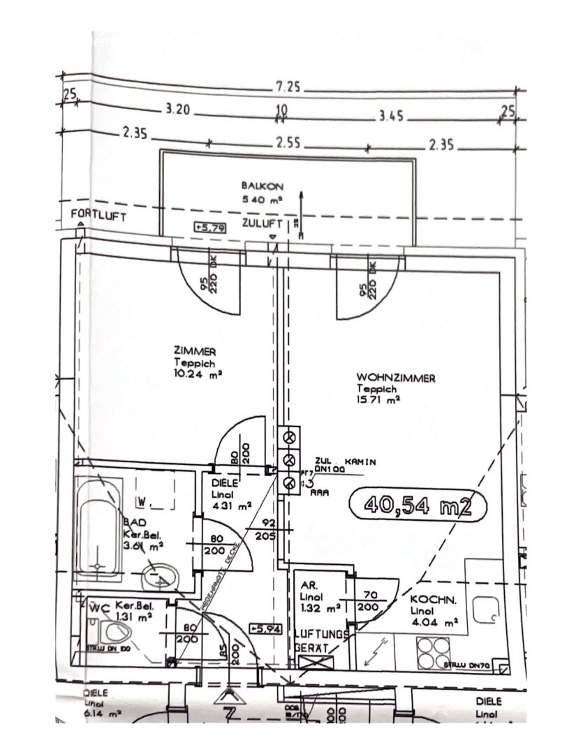
Stellen Sie sich vor, Sie öffnen Ihre Tür und haben direkt einen idyllischen Badeteich vor Augen – Ruhe, Natur und Entspannung inklusive. Genau das bietet Ihnen diese charmante 2-Zimmer-Wohnung mitten im wunderschönen Nöchling. Mit rund 41 m² Wohnfläche ist sie
Mehr lesen
Objekt ID: 2982800
Preis: € 304.05
Nutzfläche: 41 m2
Gesamtfläche: 0 m2
Ziimmer insgesamt: 2
Schlafzimmer: 2
Badezimmer: 1
Miete (netto) €: 304.05
Gesamtbelastung €: 304.05
Nutzungsart: Wohnen
Provisionspflichtig: nein
HWB: 56,17 kWh/(m²*a)
HWB Klasse: C
FGEE: 1.16
E-Ausweis Gültig Bis:: 18.08.2030
Energieausweis Art: Bedarf
Anzahl Balkone: 1
Balkon/Terrassen - Fläche: 5
Beziehbar: sofort
Max. Mietdauer: unbefristet
Etage: 1. DG / Dachgeschoss
WC: 1
Abstellräume: 1
Balkon
Neubau
Dusche
Pellets
Laminat
Freiplatz
Satteldach




