Objektbeschreibung
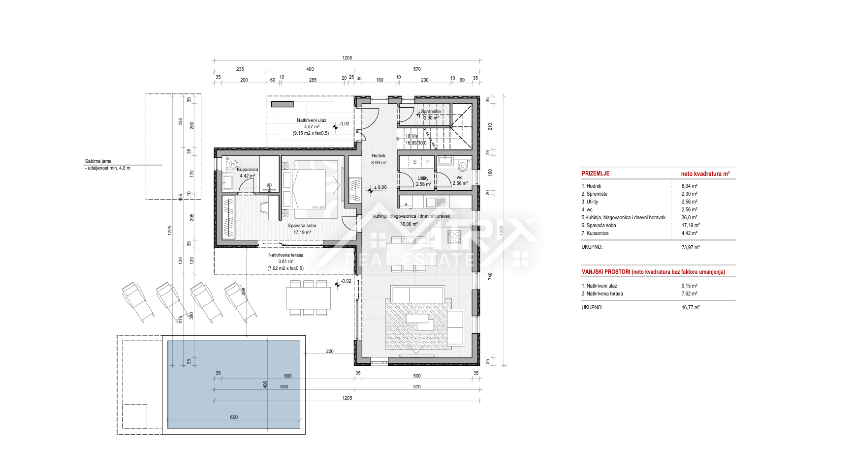
In ruhiger und gefragter Lage im Raum Pula steht ein 559 m² großes Baugrundstück zum Verkauf – regelmäßig geschnitten, eben und mit fertig ausgearbeitetem Projekt für ein modernes Einfamilienhaus mit Pool. Die Nähe zum Meer sowie die sehr gute Anbindung machen diese Immobilie besonders attraktiv: Fažana, Štinjan und Pula liegen
Mehr lesen
Objekt ID: 2991321
Preis: € 120.000
Nutzfläche: 0 m2
Gesamtfläche: 0 m2
Ziimmer insgesamt: 0
Schlafzimmer: 0
Badezimmer: 0
Nutzungsart: Anlage
Provisionspflichtig: ja















