Erweiterte Suche
Suchagent aktivieren
Exklusive Anzeigen

BRODARICA – NEUBAU, 1-ZIMMER-WOHNUNG, ZWEI PARKPLÄTZE, S1

€ 190.000,00

,

2 Zimmer
zu Favoriten hinzufügen
teilen
Suchergebnisse

Objektbeschreibung

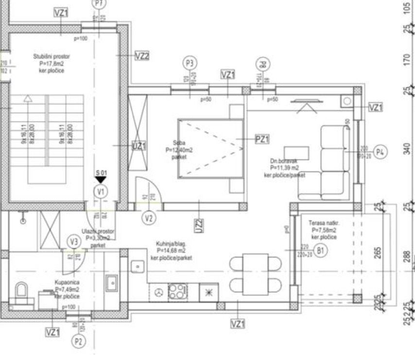
Die Wohnung S1 befindet sich im Erdgeschoss eines kleineren Wohngebäudes mit insgesamt fünf Wohnungen, in ruhiger Lage in Brodarica bei Šibenik. Die Lage eignet sich sowohl für dauerhaftes Wohnen als auch als Ferienimmobilie oder Investition zur touristischen Vermietung.

Die Wohnung besteht aus:

Eingangsbereich (3,30 m²)
Küche mit Essbereich (14,68
Mehr lesen

Bezirk:
PLZ: 22000
Land: Croatia
Objekt ID: 2992130
Preis: € 190.000
Nutzfläche: 0 m2
Gesamtfläche: 0 m2
Ziimmer insgesamt: 2
Schlafzimmer: 2
Badezimmer: 1
Nutzungsart: Wohnen
Provisionspflichtig: ja

Ähnliche Objekte

vergleichen
1725565680 img 0142

Wohnung Žaborić, Šibenik – Okolica, 71...

€ 270.000
3
Schlafzimmer
1
Badezimmer
Mai 8, 2026
vergleichen
1725870044 image39

Wohnung Brodarica, Šibenik – Okolica, ...

€ 440.000
5
Schlafzimmer
3
Badezimmer
Mai 8, 2026
vergleichen
1747212123 brodarica4

Wohnung Brodarica, Šibenik – Okolica, ...

€ 190.000
2
Schlafzimmer
1
Badezimmer
Mai 8, 2026


Andro Jakoliš

Kontaktaufnahme









    • Preisinformation
      Objektpreis190.000,00 €

    Vergleichen