Objektbeschreibung
Helle, freundliche Räume mit durchdachter Raumaufteilung
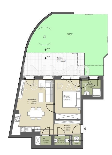
Die Wohnung besticht durch eine hervorragende Raumaufteilung, bei der der vorhandene Platz optimal genutzt wurde. Jeder Raum ist lichtdurchflutet, was die Wohnung besonders freundlich und einladend macht. Die großen Fenster eröffnen einen freien Blick auf den privaten Garten, der Ihnen ausreichend Platz bietet, um
Mehr lesen
Dokumente
Objekt ID: 2996105
Preis: € 449.600
Nutzfläche: 49 m2
Gesamtfläche: 0 m2
Ziimmer insgesamt: 2
Schlafzimmer: 2
Badezimmer: 1
Miete/m2 €: 7868.39
Nutzungsart: Wohnen
Provisionspflichtig: nein
Provision: Provision bezahlt der Abgeber.
HWB: 23,90 kWh/(m²*a)
HWB Klasse: B
FGEE: 0.69
E-Ausweis Gültig Bis:: 27.07.2033
Energieausweis Art: Bedarf
Balkon/Terrassen - Fläche: 16
Beziehbar: 01.05.2026
Etage: Erdgeschoß
WC: 1
Neubau
Personenaufzug
Parkett
Kabel/Sat-TV
Fahrradraum
offene Küche
Offene Küche
Klimaanlage
schlüsselfertig mit Keller
Erdwärme
Ähnliche Objekte
Anlegerhit oder Eigenheim | Sanierte 2-Zimme...
€ 299.000
2
Schlafzimmer
1
Badezimmer
60 m2
Größe
Mai 10, 2026
Hofseitige Gartenwohnung mit Terrasse I Grün...
€ 360.000
3
Schlafzimmer
1
Badezimmer
59 m2
Größe
Mai 10, 2026












