Objektbeschreibung
In ruhiger Lage an der Ostküste Istriens, in der Umgebung von Marčana, steht die Einheit A innerhalb eines Projekts moderner, vollständig ausgestatteter modularer Häuser mit privaten Pools zum Verkauf. Das Konzept ist als schlüsselfertige Lösung gedacht – ideal zur Eigennutzung oder als attraktive Investition für die touristische Vermietung, mit Fokus
Mehr lesen
Objekt ID: 3004409
Preis: € 169.900
Nutzfläche: 0 m2
Gesamtfläche: 0 m2
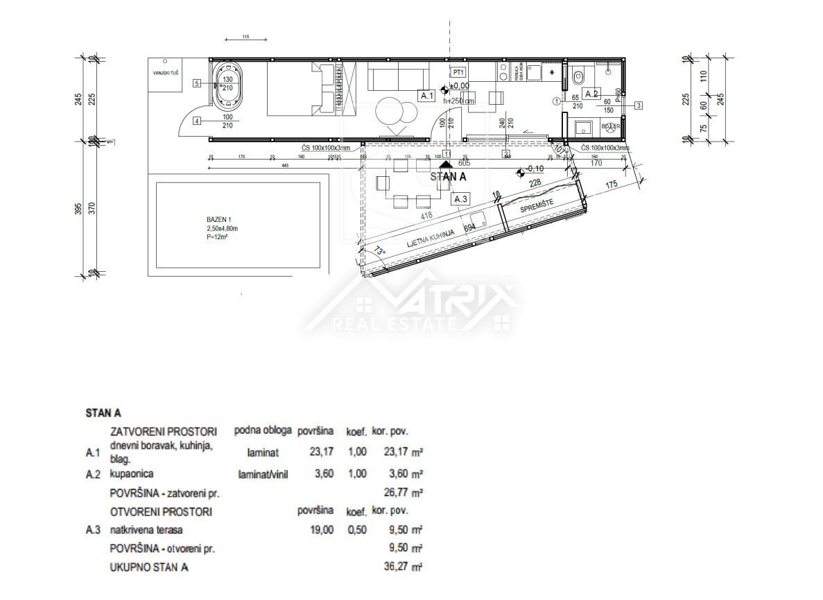
Ziimmer insgesamt: 2
Schlafzimmer: 2
Badezimmer: 1
Nutzungsart: Wohnen
Provisionspflichtig: ja


















