Objektbeschreibung
Lage
Die Immobilie befindet sich in einer sehr beliebten Lage in Hard, direkt in der Quellenstraße, einer Verbindungsstraße mit ausgezeichneter Erreichbarkeit. In unmittelbarer Nähe liegen zahlreiche Einkaufsmöglichkeiten, Gastronomiebetriebe, Schulen und öffentliche Einrichtungen, was den Standort besonders attraktiv macht. Gleichzeitig profitieren Sie von der ruhigen Wohnqualität der Seitenstraßen sowie der schnellen Erreichbarkeit
Mehr lesen
Dokumente
Objekt ID: 3009843
Preis: € 380.000
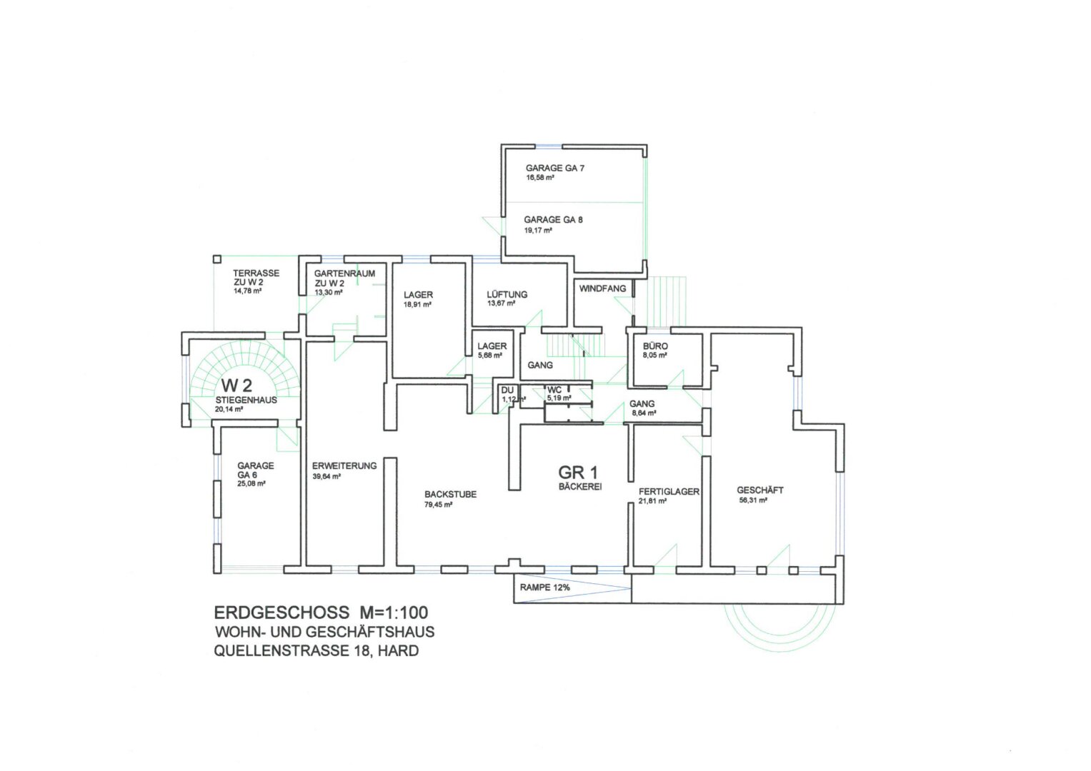
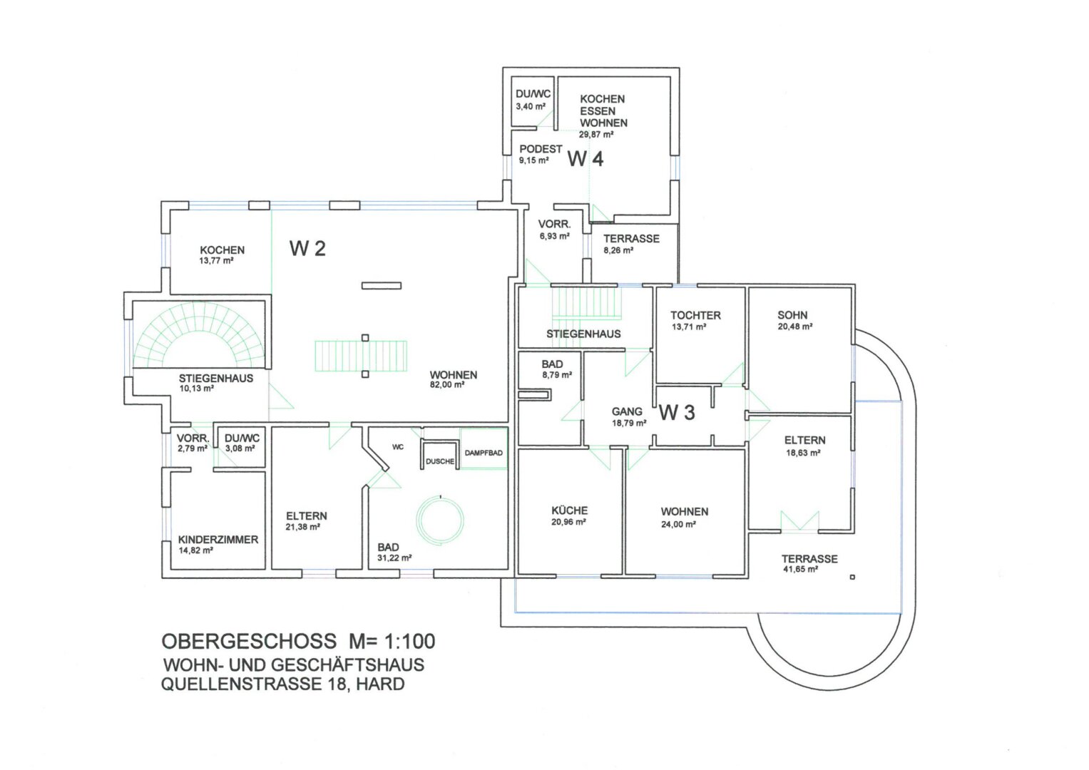
Nutzfläche: 134 m2
Gesamtfläche: 0 m2
Ziimmer insgesamt: 3
Schlafzimmer: 3
Badezimmer: 1
Nutzungsart: Wohnen
Provisionspflichtig: ja
Provision: 3% des Kaufpreises zzgl. 20% USt.
HWB: 121 kWh/(m²*a)
HWB Klasse: D
FGEE: 1.77
E-Ausweis Gültig Bis:: 31.01.2028
Energieausweis Art: Bedarf
Balkon/Terrassen - Fläche: 28
WC: 1
Abstellräume: 1
Bad mit Fenster
Zentralheizung
Abstellraum
Öl
Ähnliche Objekte
Seltene Gelegenheit: Exklusive Penthouse-Woh...
€ 555.000
3
Schlafzimmer
1
Badezimmer
77 m2
Größe
Mai 8, 2026
Hard | 5-Zimmer-Wohnung | Elegantes Wohnen a...
€ 973.000
5
Schlafzimmer
3
Badezimmer
263 m2
Größe
März 18, 2026
2-Zimmer-Wohnung in Hard mit Balkon.Perfekte...
€ 296.000
2
Schlafzimmer
1
Badezimmer
55 m2
Größe
Januar 6, 2026


















