Erweiterte Suche
Suchagent aktivieren
Exklusive Anzeigen

Vrsi, Zukve – Neubauwohnung zu attraktivem Preis, 125 m vom Meer

€ 250.000,00

,

94.073 Zimmer
zu Favoriten hinzufügen
teilen
Suchergebnisse

Objektbeschreibung

 

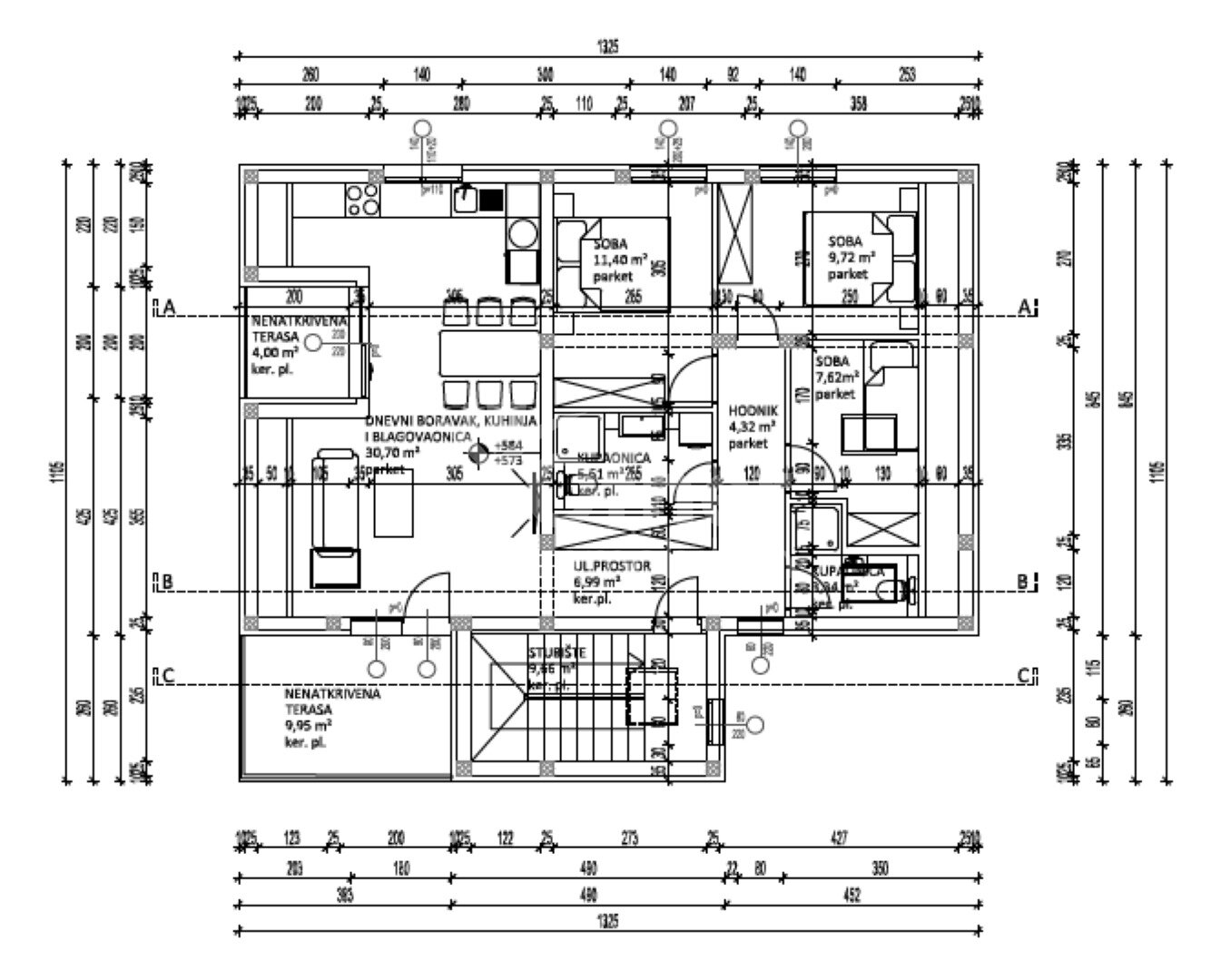
Zum Verkauf steht eine preislich attraktive Neubauwohnung in Vrsi, Ortsteil Zukve, nur 125 m vom Meer und 2 km vom Ortszentrum entfernt. Die Immobilie befindet sich im 2. Stock eines kleineren Wohngebäudes und eignet sich ideal als Feriendomizil, zur Eigennutzung oder zur touristischen Vermietung in Strandnähe.

Die Raumaufteilung umfasst
Mehr lesen

Bezirk:
PLZ: 23232
Land: Croatia
Objekt ID: 3014864
Preis: € 250.000
Nutzfläche: 94 m2
Gesamtfläche: 0 m2
Ziimmer insgesamt: 3
Schlafzimmer: 3
Badezimmer: 2
Nutzungsart: Anlage
Provisionspflichtig: ja
Provision: 3% des Kaufpreises zzgl. 20% USt.
als Ferienimmobilie nutzbar

Vergleichen