Objektbeschreibung
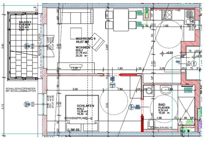
Willkommen in Ihrem neuen betreuten Zuhause in der charmanten Stadt Linz! Diese wunderschöne 2-Zimmer-Wohnung in einer betreuten Wohnanlage in der 1. Etage bietet Ihnen nicht nur eine hervorragende Lage, sondern auch einen hohen Wohnkomfort, der keine Wünsche offenlässt.
Mit einer großzügigen Fläche von 49,87 m² ist diese Wohnung ideal für
Mehr lesen
Adresse: Maderspergerstraße 22/ Top 09
Ort: Linz
Bezirk: 4020
Bundesland: Oberösterreich
PLZ: 4020
Land: Österreich
Objekt ID: 3015660
Preis: € 758.96
Nutzfläche: 50 m2
Gesamtfläche: 0 m2
Ziimmer insgesamt: 2
Schlafzimmer: 2
Badezimmer: 1
Miete (netto) €: 520.41
USt €: 69
Gesamtbelastung €: 758.96
Nutzungsart: Wohnen
Provisionspflichtig: nein
Kaution: 2.360,00 €
HWB: 35,90 kWh/(m²*a)
Energieausweis Art: Bedarf
Anzahl Balkone: 1
Balkon/Terrassen - Fläche: 5
Beziehbar: nach Vereinbarung
Etage: 1. Etage
WC: 1
Balkon
barrierefrei
Personenaufzug
offene Küche
Offene Küche
Ähnliche Objekte
Premium Wohnung in Urfahr mit mega Balkon, S...
€ 1.493.19
2
Schlafzimmer
1
Badezimmer
61 m2
Größe
Mai 7, 2026
Sehr helle 3-Zimmerwohnung in Urfahr Gründbe...
€ 1.379.39
3
Schlafzimmer
1
Badezimmer
69 m2
Größe
Mai 7, 2026
Sehr gut aufgeteilte 3-Zimmer Wohnung in Urf...
€ 1.608.97
3
Schlafzimmer
1
Badezimmer
83 m2
Größe
Mai 7, 2026










