Objektbeschreibung
EXKLUSIVE NEUBAU-EIGENTUMSWOHNUNGEN MIT FREIFLÄCHEN – „DIE OASE“ IN MARIA ENZERSDORF
PROJEKTBESCHREIBUNG
Willkommen in „Die Oase“ in Maria Enzersdorf – einem exklusiven Neubauprojekt mit hochwertig ausgestatteten Eigentumswohnungen in ruhiger Grünlage südlich von Wien. Das Projekt verbindet modernes Wohnen, nachhaltige Bauweise und hervorragende Infrastruktur zu einem Wohnkonzept mit hoher Lebensqualität.
Insgesamt umfasst das Projekt
Mehr lesen
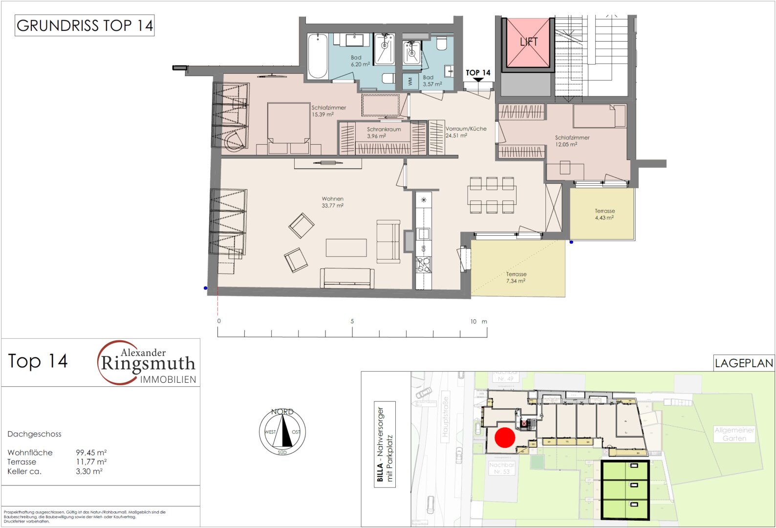
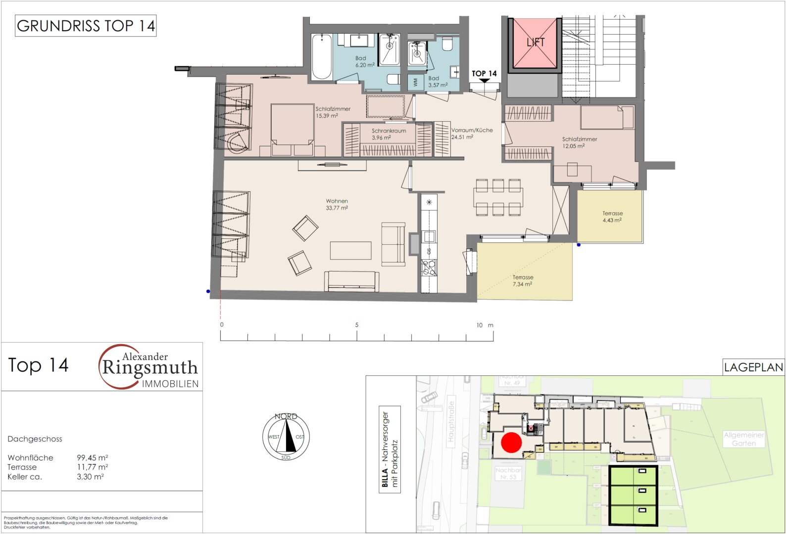
Objekt ID: 3024563
Preis: € 825.200
Nutzfläche: 99 m2
Gesamtfläche: 0 m2
Ziimmer insgesamt: 4
Schlafzimmer: 4
Badezimmer: 2
Betriebskosten €: 236.05
Nutzungsart: Anlage
Provisionspflichtig: nein
Provision: Provision bezahlt der Abgeber.
HWB: 46 kWh/(m²*a)
HWB Klasse: B
FGEE: 0.73
E-Ausweis Gültig Bis:: 08.08.2034
Energieausweis Art: Bedarf
Balkon/Terrassen - Fläche: 11
Beziehbar: sofort
Etage: 1. DG
WC: 2
Abstellräume: 1
barrierefrei
Neubau
Personenaufzug
Gäste-WC
Parkett
Badewanne
Fußbodenheizung
Fahrradraum
Klimaanlage
Luft-Wärmepumpe
Massiv
Massivbauweise
Gartennutzung
schlüsselfertig mit Keller
Tiefgarage
Holz(rahmen)
Holzbauweise
Ähnliche Objekte
4-Zimmer-Eigentumswohnung mit Süd-Balkon und...
€ 449.000 pro Monat
4
Schlafzimmer
1
Badezimmer
102 m2
Größe
Mai 4, 2026
PROVISIONSFREI ! Exklusive Eigentumswohnunge...
€ 947.500
5
Schlafzimmer
2
Badezimmer
133 m2
Größe
April 29, 2026
PROVISIONSFREI ! Exklusive Eigentumswohnunge...
€ 340.000
2
Schlafzimmer
1
Badezimmer
55 m2
Größe
April 29, 2026















