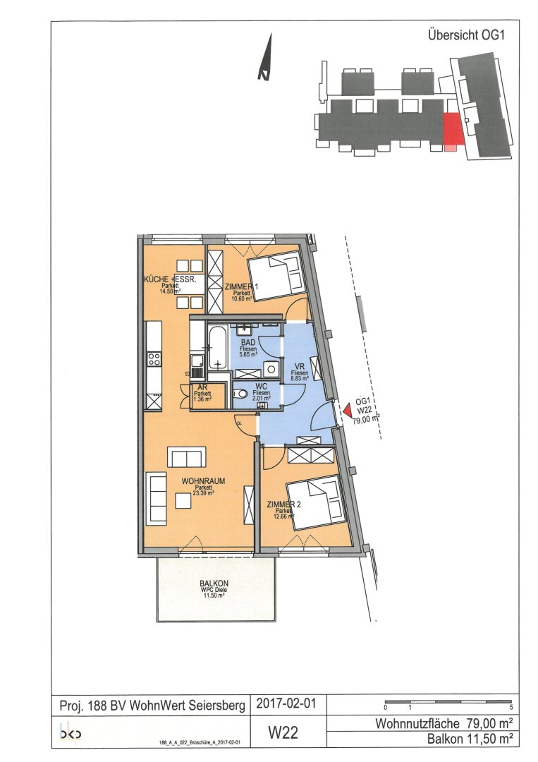
Objektbeschreibung
Die charmante und optimal aufteilte Wohnung verfügt über 79,00 m² und teilt sich wie folgt auf:
* Vorraum
* Wohnraum
* Küche mit Essnische und Abstellkammer
* Badezimmer mit Badewanne und WM-Anschluss
* separates WC
* 2 getrennt begehbare Zimmer
* Balkon
Mehr lesen
Adresse: Kärntner Straße 510
Ort: Seiersberg
Bezirk: 8054
Bundesland: Steiermark
PLZ: 8054
Land: Österreich
Objekt ID: 3029649
Preis: € 1.019.60
Nutzfläche: 79 m2
Gesamtfläche: 79 m2
Ziimmer insgesamt: 0
Schlafzimmer: 0
Badezimmer: 0
Miete/m2 €: 8.35
Miete (netto) €: 659.65
USt €: 92.7
Gesamtbelastung €: 1019.6
Nutzungsart: Wohnen
Provisionspflichtig: nein
Kaution: 3 Bruttomonatsmieten
Anzahl Balkone: 1
Beziehbar: nach Absprache
Max. Mietdauer: unbefristet
Etage: 1. Etage
Balkon
Einbauküche
WG-geeignet
Gäste-WC
Badewanne
Kabel/Sat-TV
offene Küche
Offene Küche










