Objektbeschreibung
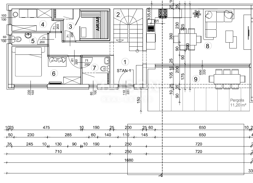
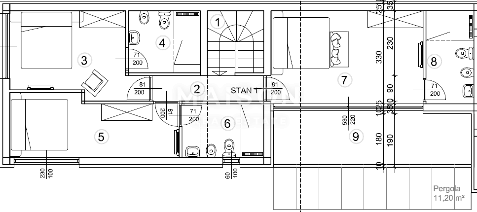
In einer ruhigen Lage nahe Krk befindet sich diese elegante und moderne Doppelhaushälfte, ideal für alle, die ein luxuriöses Zuhause in einem Neubau suchen. Mit einer Wohnfläche von 157 m² auf zwei Etagen bietet sie eine perfekte Kombination aus modernem Design, Funktionalität und Komfort, mit unmittelbarer Nähe zu allen wichtigen
Mehr lesen
Objekt ID: 3050930
Preis: € 665.000
Nutzfläche: 0 m2
Gesamtfläche: 350 m2
Ziimmer insgesamt: 5
Schlafzimmer: 5
Badezimmer: 4
Nutzungsart: Wohnen
Provisionspflichtig: ja
WC: 1















