Objektbeschreibung
Ihr Zuhause Zwischen Stadt und Natur
Angrenzend an ein bestehendes Bauvorhaben erweitert das Projekt das Quartier um 80 freifinanzierte, provisionsfreie Eigentumswohnungen sowie 37 PKW-Tiefgaragenstellplätze. Die gut geplanten zwei und drei Zimmer Grundrisse mit Wohnflächen von ca. 34 bis 87 m² decken unterschiedliche Lebenssituationen ab und bieten praxisorientierte Raumaufteilungen. Jede Einheit verfügt über eine private
Mehr lesen
Objekt ID: 3066710
Preis: € 359.500
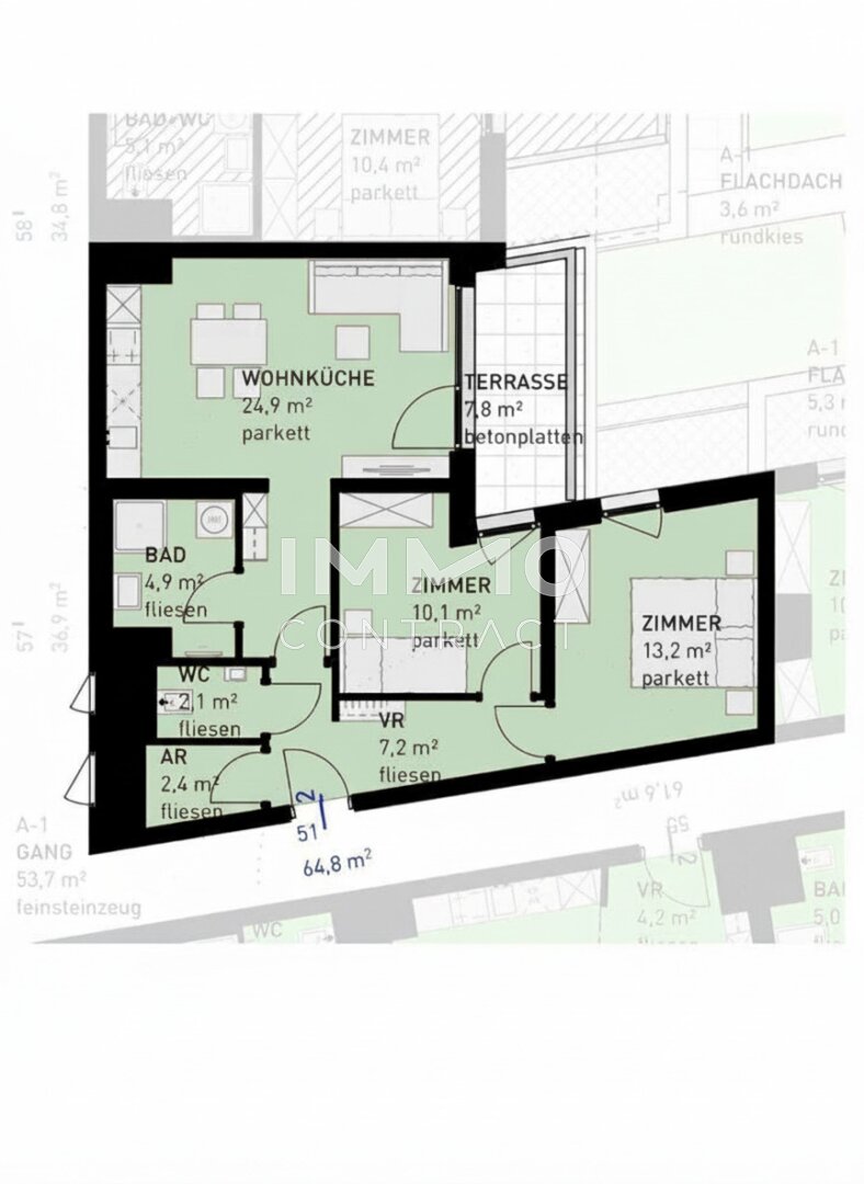
Nutzfläche: 65 m2
Gesamtfläche: 65 m2
Ziimmer insgesamt: 3
Schlafzimmer: 3
Badezimmer: 0
Nutzungsart: Wohnen
Provisionspflichtig: ja
Provision: Provisionsfrei
HWB: 34,30 kWh/(m²*a)
HWB Klasse: B
FGEE: 0.74
E-Ausweis Gültig Bis:: 21.06.2033
Energieausweis Art: Bedarf
Balkon/Terrassen - Fläche: 7
Beziehbar: 30.06.2028
Etage: 2. Etage / 2. Obergeschoss
Neubau
Personenaufzug
Gäste-WC
Fußbodenheizung
Fahrradraum
offene Küche
Offene Küche
Luft-Wärmepumpe
Massiv
Massivbauweise
Estrich
Gartennutzung
Tiefgarage
Flachdach
Neubaustandard












