Erweiterte Suche
Suchagent aktivieren
Exklusive Anzeigen

Geförderte Wohnung in Hofamt Priel

€ 809,76

,

80.613 Zimmer
zu Favoriten hinzufügen
teilen
Suchergebnisse

Objektbeschreibung

Treten Sie ein in Ihr neues Wohlfühl-Zuhause!

Diese freundliche Dachgeschosswohnung mit rund 80 m² Wohnfläche besticht durch eine clevere Raumgestaltung und angenehme Wohnatmosphäre.

Der zentrale Wohnbereich ist die offen gestaltete Wohnküche, die direkten Zugang zu einem etwa 6 m² großen Balkon bietet – ein perfekter Ort, um frische Luft zu
Mehr lesen

Bezirk:
Bundesland:
PLZ: 3681
Land: Österreich
Objekt ID: 3068285
Preis: € 809.76
Nutzfläche: 81 m2
Gesamtfläche: 0 m2
Ziimmer insgesamt: 3
Schlafzimmer: 3
Badezimmer: 1
Miete (netto) €: 685.19
Gesamtbelastung €: 809.76
Nutzungsart: Wohnen
Provisionspflichtig: nein
HWB: 34,70 kWh/(m²*a)
HWB Klasse: B
FGEE: 0.62
E-Ausweis Gültig Bis:: 09.09.2034
Energieausweis Art: Bedarf
Anzahl Balkone: 1
Balkon/Terrassen - Fläche: 6
Beziehbar: sofort
Max. Mietdauer: unbefristet
Etage: DG
WC: 1
Abstellräume: 1
Balkon
Neubau
Badewanne
Fahrradraum
Abstellraum
Laminat
Fernheizung
Fernwärme
Tiefgarage
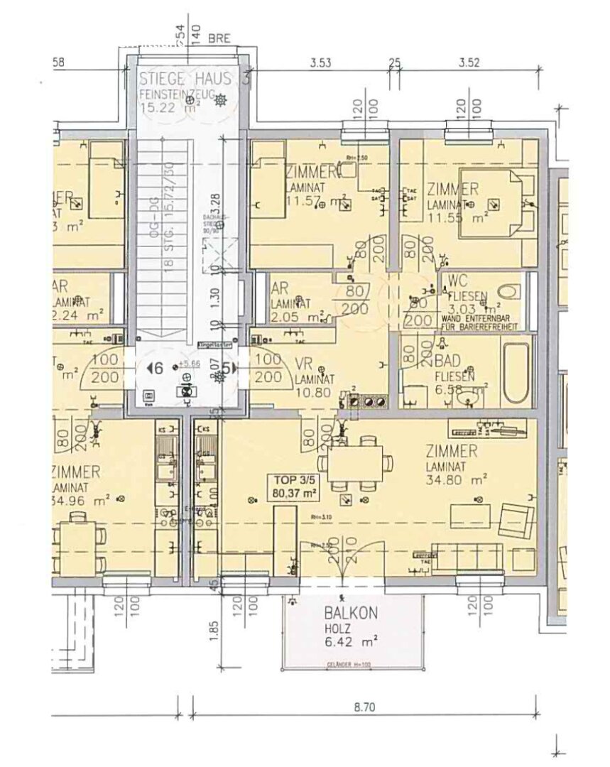
Plan Top 5
Plan Top 5

Ähnliche Objekte

vergleichen
1O7zWiuoPIp14dq2mVRX7C
PROVISIONSFREI

Geförderte 4 Zimmer-Wohnung mit Badeteich

€ 834.33
4
Schlafzimmer
1
Badezimmer
81 m2
Größe
Mai 7, 2026
vergleichen
33n2iwxaae6pewyTt976ch
PROVISIONSFREI

Geförderte DG-Wohnung

€ 685.19
3
Schlafzimmer
1
Badezimmer
81 m2
Größe
Mai 6, 2026
vergleichen
Haus mit Badeteich
PROVISIONSFREI

Geförderte DG-Wohnung

€ 746.67
3
Schlafzimmer
1
Badezimmer
72 m2
Größe
Mai 6, 2026

S-COMMERZ Immobilienvermittlung GmbH
Karin LOCSMANDI

Kontaktaufnahme









    • Preisinformation
      Miete netto685,19 €
      Gesamtbelastung809,76 €
      Objektpreis809,76 €

    Vergleichen