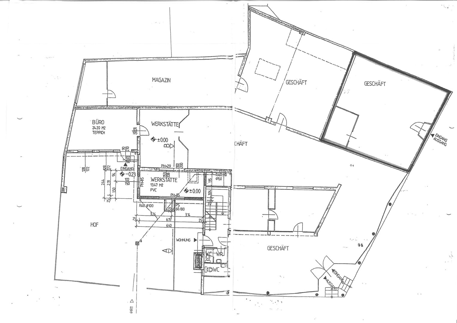
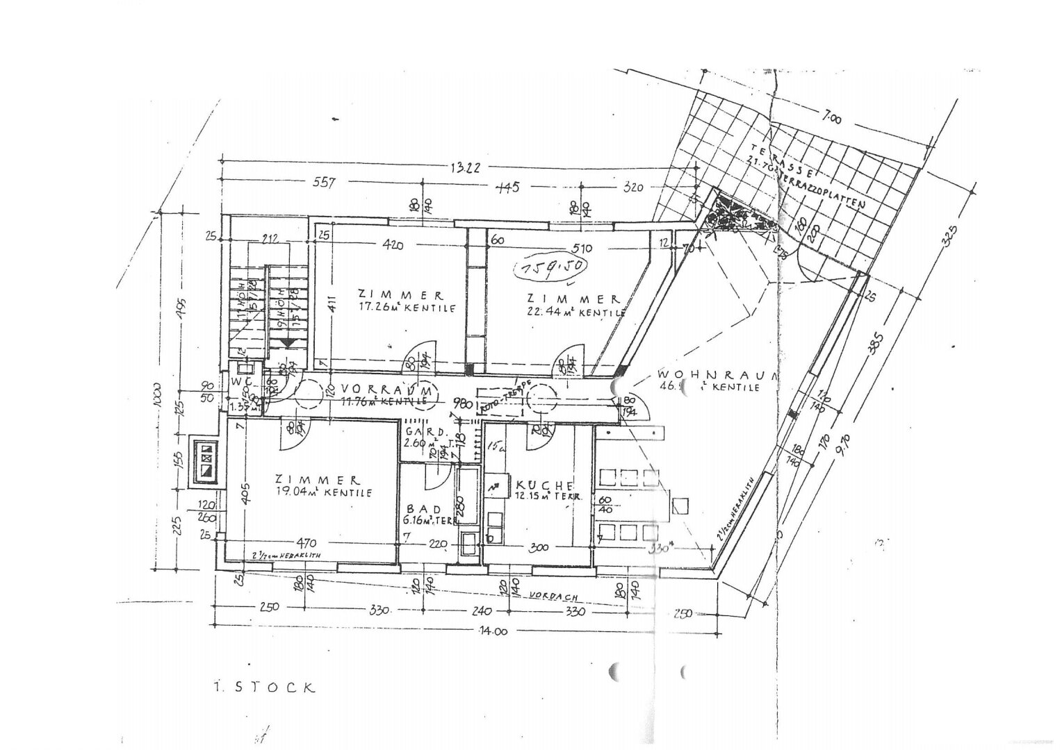
Objektbeschreibung
Dieses attraktive Anlageobjekt befindet sich in bester Lage im Zentrum von Gloggnitz, Niederösterreich. Es besteht aus einem Geschäftslokal, einem Friseursalon und einer flexibel nutzbaren Einheit, die als Wohnung oder Büro genutzt werden kann. Das Objekt wurde in den letzten Jahren umfangreich modernisiert und bietet dadurch hervorragende Investitionsmöglichkeiten.
Investitionen in den
Mehr lesen
Objekt ID: 3073361
Preis: € 885.000
Nutzfläche: 0 m2
Gesamtfläche: 675 m2
Ziimmer insgesamt: 0
Schlafzimmer: 0
Badezimmer: 0
Nutzungsart: Anlage
HWB: 192,30 kWh/(m²*a)
HWB Klasse: F
FGEE: 2.02
E-Ausweis Gültig Bis:: 23.08.2033
Energieausweis Art: Bedarf
Gas
Freiplatz












