Erweiterte Suche
Suchagent aktivieren
Exklusive Anzeigen

Großzügige 2-Zimmer-Wohnung mit Balkon nähe Naschmarkt

€ 895.000,00

,

792 Zimmer
zu Favoriten hinzufügen
teilen
Suchergebnisse

Objektbeschreibung

LAGE

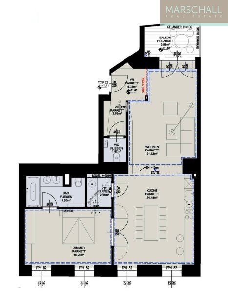
Diese frisch sanierte 2-Zimmer-Wohnung bietet eine Wohnfläche von ca. 79 m² und befindet sich in einem vollsanierten, eleganten Gebäude nahe des Naschmarkts und des Margaretenplatzes. 

RAUMAUFTEILUNG und AUSSTATTUNG

Durch den Vorraum mit Zugang zu einem Gäste-WC gelangt man direkt in den sehr großzügig geschnittenen Wohnbereich mit offener Küche und
Mehr lesen

Ort:
Bezirk:
Bundesland:
PLZ: 1050
Land: Österreich
Objekt ID: 3075483
Preis: € 895.000
Nutzfläche: 79 m2
Gesamtfläche: 0 m2
Ziimmer insgesamt: 2
Schlafzimmer: 2
Badezimmer: 1
Miete/m2 €: 10914.63
Nutzungsart: Wohnen
Provisionspflichtig: ja
Provision: 3% des Kaufpreises zzgl. 20% USt.
HWB: 91,60 kWh/(m²*a)
FGEE: 1.4
E-Ausweis Gültig Bis:: 28.04.2032
Energieausweis Art: Bedarf
Anzahl Balkone: 1
Balkon/Terrassen - Fläche: 6
Beziehbar: Nov 2024
Etage: 3. Etage / 3. OG
WC: 2
Abstellräume: 1
Balkon
barrierefrei
Einbauküche
Personenaufzug
Gäste-WC
Altbau
Parkett
Badewanne
Fußbodenheizung
Kabel/Sat-TV
Fahrradraum
offene Küche
Abstellraum
Offene Küche
Rollläden
vollerschlossen
Fernwärme
Grundriss
Grundriss

Ähnliche Objekte

vergleichen
PYMF8CrjcWxYafBcmvC4Q9

Anlegerhit oder Eigenheim | Sanierte 2-Zimme...

€ 299.000
2
Schlafzimmer
1
Badezimmer
60 m2
Größe
vergleichen
HK9NHXCYNG23YOYf8zX79

Hofseitige Gartenwohnung mit Terrasse I Grün...

€ 360.000
3
Schlafzimmer
1
Badezimmer
59 m2
Größe
Mai 10, 2026

Marschall Immobilien GmbH
Alexander Hamersky

Kontaktaufnahme









    • Preisinformation
      Objektpreis895.000,00 €

    Vergleichen