Objektbeschreibung
Willkommen zu Ihrem neuen Zuhause in Linz – einer Stadt, die nicht nur für ihre beeindruckende Kultur und Geschichte bekannt ist, sondern auch für ihre hervorragende Lebensqualität. Diese attraktive Wohnung im Herzen von Linz bietet Ihnen die perfekte Kombination aus modernem Wohnkomfort und idealer Infrastruktur.
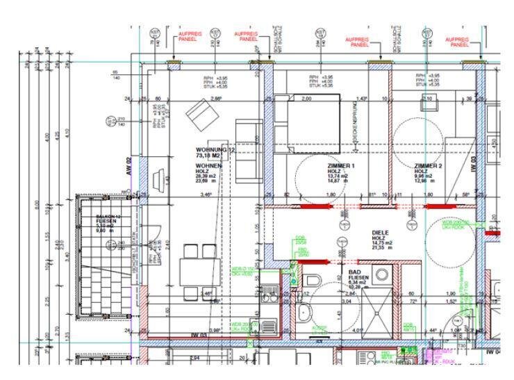
Mit einer großzügigen Fläche von
Mehr lesen
Adresse: Maderspergerstraße 22
Ort: Linz
Bezirk: 4020
Bundesland: Oberösterreich
PLZ: 4020
Land: Österreich
Objekt ID: 3077548
Preis: € 990.12
Nutzfläche: 73 m2
Gesamtfläche: 0 m2
Ziimmer insgesamt: 2
Schlafzimmer: 2
Badezimmer: 1
Miete/m2 €: 9.32
Miete (netto) €: 658.62
USt €: 90.01
Gesamtbelastung €: 990.12
Nutzungsart: Wohnen
Provisionspflichtig: nein
Kaution: 3.050,00 €
HWB: 35,90 kWh/(m²*a)
Energieausweis Art: Bedarf
Anzahl Balkone: 1
Balkon/Terrassen - Fläche: 5
Beziehbar: ab sofort bzw. nach Vereinbarung
WC: 1
Balkon
Einbauküche
Betreutes Wohnen












