Objektbeschreibung
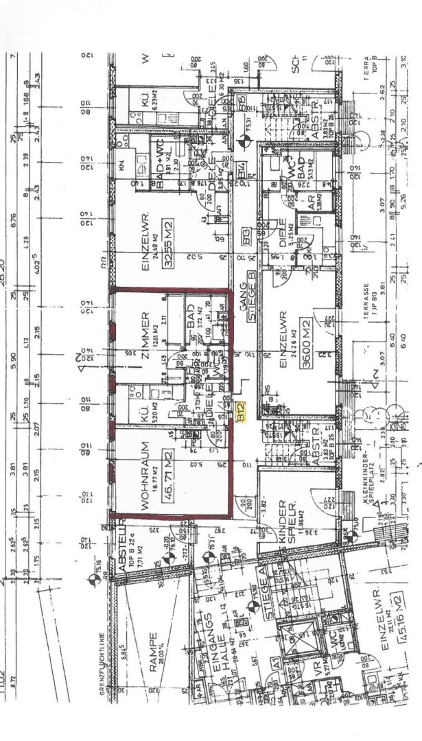
Diese 2-Zimmer Erdgeschoß-Wohnung besticht durch ihre ideale Raumaufteilung, der zentralen Lage in Ober St. Veit, der umliegenden Gastronomie, den Einkaufsmöglichkeiten und den Ausflugs- und Sportmöglichkeiten im nahegelegenen Lainzer Tiergarten. Die Wohnhausanlage wurde im Jahr 1985 errichtet und Anfang 2023 wurde die Wohnung modernisiert. Die Wohnung verfügt über keinen Waschmaschinenanschluss, das
Mehr lesen
Dokumente
Objekt ID: 3084740
Preis: € 908.50
Nutzfläche: 47 m2
Gesamtfläche: 47 m2
Ziimmer insgesamt: 2
Schlafzimmer: 2
Badezimmer: 1
Miete (netto) €: 660
Betriebskosten €: 121
Gesamtbelastung €: 908.5
Nutzungsart: Wohnen
Provisionspflichtig: nein
Kaution: 2.800,00 €
HWB: 106,20 kWh/(m²*a)
HWB Klasse: D
FGEE: 4.84
Energieausweis Art: Bedarf
Beziehbar: Sofort
Etage: EG
WC: 1
Einbauküche
Personenaufzug
Gas
Ähnliche Objekte
BOKU-Nähe – sanierte 2 Zimmer-Wohnung ...
€ 1.015.73
2
Schlafzimmer
1
Badezimmer
41 m2
Größe
März 27, 2026
Nähe U6, Handelskai und Mortarapark I Balkon...
€ 817.23
2
Schlafzimmer
1
Badezimmer
73 m2
Größe
März 27, 2026















