Erweiterte Suche
Suchagent aktivieren
Exklusive Anzeigen

Studie: Reihenhäuser in attraktiver Lage von Götzis

€ 739.000,00

,

1004 Zimmer
zu Favoriten hinzufügen
teilen
Suchergebnisse

Objektbeschreibung

Kornfeld 43 – Wohnen mit Garten und Lebensqualität

PROJEKTSTUDIE – MODERNES WOHNEN MIT GARTEN

Bei dem dargestellten Projekt handelt es sich derzeit um eine Studie. Die dargestellten Grundrisse sowie Visualisierungen dienen ausschließlich als Symbolbilder zur Veranschaulichung eines möglichen Bauprojektes und können sich im Zuge der weiteren Planung noch ändern.

Die
Mehr lesen

Dokumente
Ort:
Bezirk:
Bundesland:
PLZ: 6840
Land: Österreich
Objekt ID: 3092212
Preis: € 739.000
Nutzfläche: 100 m2
Gesamtfläche: 0 m2
Ziimmer insgesamt: 4
Schlafzimmer: 4
Badezimmer: 1
Nutzungsart: Wohnen
Balkon/Terrassen - Fläche: 15
WC: 1
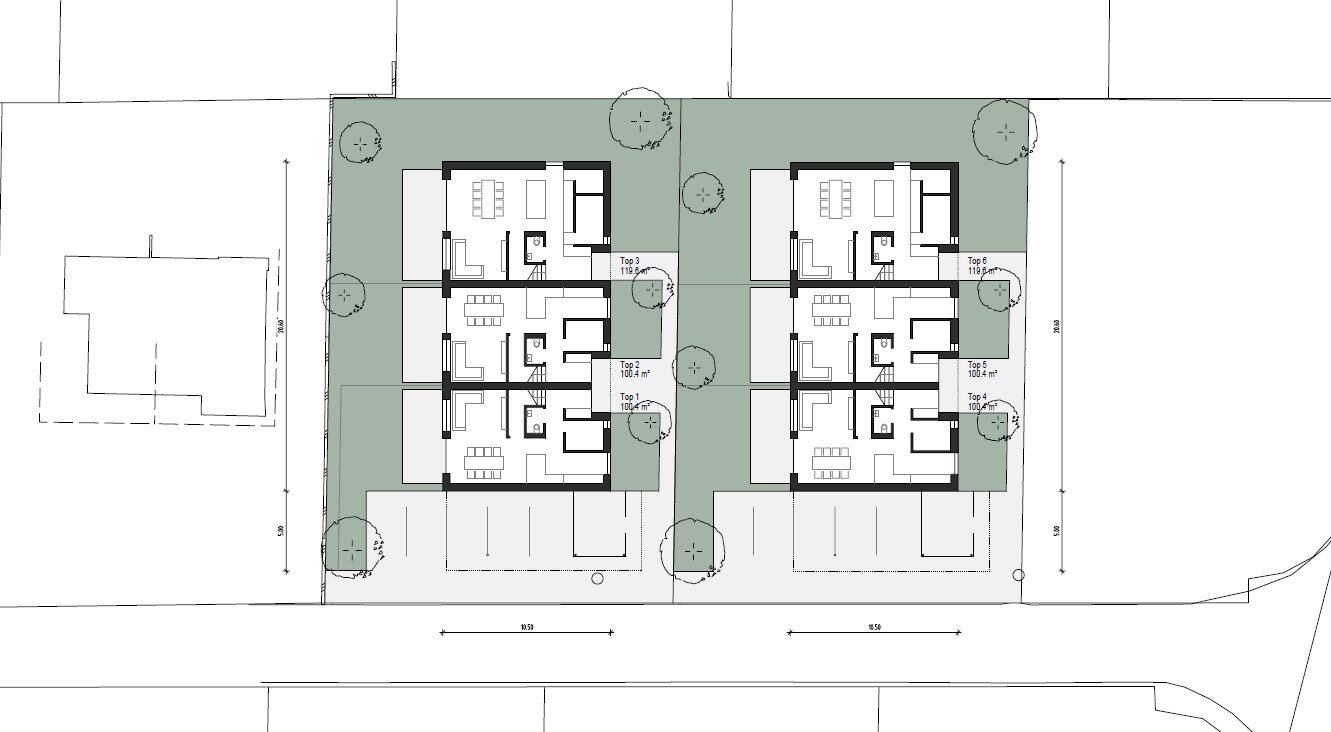
Grundriss EG
Grundriss EG
Grundriss OG
Grundriss OG

Ähnliche Objekte

vergleichen
Wohnbereich

Haus und Atelier in Götzis zum kaufen

€ 740.000
8
Schlafzimmer
1
Badezimmer
264 m2
Größe
März 20, 2026
vergleichen
6dfic7WRvuRRPEMKMAnPY2

Projekt Kompakt Daheim² – modernes Dop...

€ 798.500
4
Schlafzimmer
1
Badezimmer
93 m2
Größe
Februar 3, 2026
vergleichen
7BMbKtigIQAH4x4yeVqV4q

Projekt Kompakt Daheim² – modernes Dop...

€ 785.850
4
Schlafzimmer
1
Badezimmer
93 m2
Größe
Februar 3, 2026

Vergleichen