Objektbeschreibung
Four Living Strasshof – Belagsfertige Einfamilienhäuser mit großzügiger Freifläche zu Verkaufen.
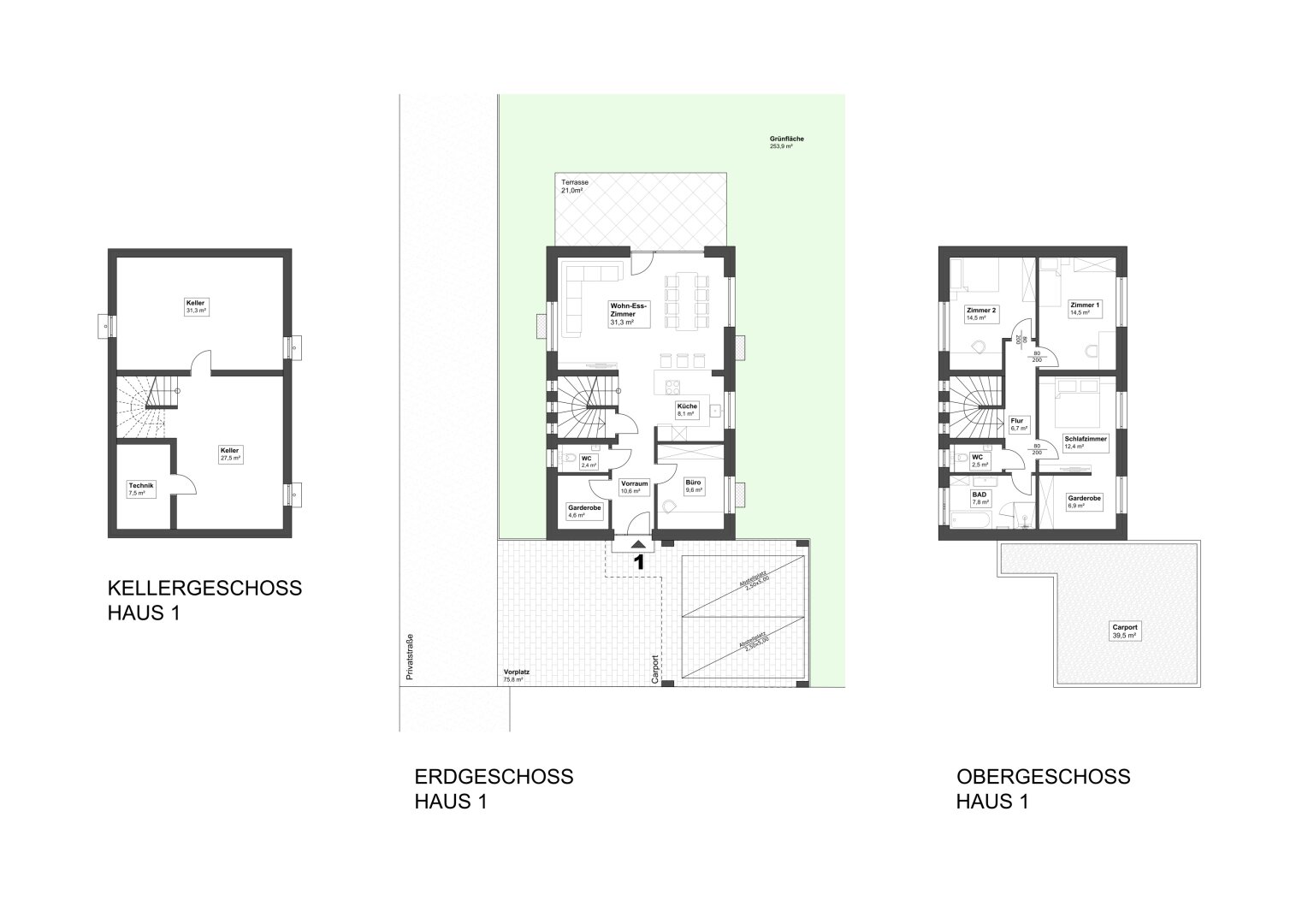
Auf einer Grundstücksgröße von ca. 2069,00m² entstehen vier Einfamilienhäuser mit einer Wohnnutzfläche von jeweils ca. 198,00m². Die angebotenen Wohneinheiten sind über eine eigene Zufahrtsstraße erreichbar und liegen als Fahnenparzelle geschützt von der Hauptstraße abgewandt.
Das Projekt befindet sich gerade
Mehr lesen
Objekt ID: 3100870
Preis: € 630.000
Nutzfläche: 132 m2
Gesamtfläche: 198 m2
Ziimmer insgesamt: 5
Schlafzimmer: 5
Badezimmer: 1
Nutzungsart: Wohnen
Provisionspflichtig: ja
Provision: 3% des Kaufpreises zzgl. 20% USt.
HWB: 33,60 kWh/(m²*a)
HWB Klasse: B
FGEE: 0.63
E-Ausweis Gültig Bis:: 22.07.2035
Energieausweis Art: Bedarf
Balkon/Terrassen - Fläche: 21
Beziehbar: Ende 2026
WC: 2
Abstellräume: 1
Neubau
Gäste-WC
Bad mit Fenster
Fußbodenheizung
Kabel/Sat-TV
offene Küche
Offene Küche
Rollläden
Carport
Luft-Wärmepumpe
vollerschlossen
Estrich
Flachdach
Kabelkanäle
Ähnliche Objekte
Modernisiertes Mehrfamilienhaus mit viel Pla...
€ 619.000
8
Schlafzimmer
3
Badezimmer
208 m2
Größe
Mai 6, 2026
Licht, Luft und Freiheit: Bungalow mit große...
€ 595.000
4
Schlafzimmer
1
Badezimmer
104 m2
Größe
Mai 6, 2026









