Erweiterte Suche
Suchagent aktivieren
Exklusive Anzeigen

2 Zimmer Wohnung mit Dachgarten Nähe Donaulände

€ 405.000,00

,

54.652 Zimmer
zu Favoriten hinzufügen
teilen
Suchergebnisse

Objektbeschreibung

Modernes Wohnen in Tulln – Eigentumswohnungen mit Balkon, Garten oder Dachterrasse
Mit dem Neubauprojekt „Junge Römer“ entstehen in der Langenlebarner Straße 5 insgesamt 36 Eigentumswohnungen in zentraler Lage nahe Donau, Bahnhof und Stadtkern. Zur Auswahl stehen Gartenwohnungen, Wohnungen mit Balkon sowie Dachgeschosswohnungen mit großzügigen Dachterrassen, Sonnendecks und Weitblick.

Die
Mehr lesen

Dokumente
Bezirk:
Bundesland:
PLZ: 3430
Land: Österreich
Objekt ID: 3101817
Preis: € 405.000
Nutzfläche: 55 m2
Gesamtfläche: 0 m2
Ziimmer insgesamt: 2
Schlafzimmer: 2
Badezimmer: 1
Betriebskosten €: 123
Nutzungsart: Anlage
Provisionspflichtig: ja
Provision: 3% des Kaufpreises zzgl. 20% USt.
HWB: 30 kWh/(m²*a)
HWB Klasse: B
FGEE: 0.59
E-Ausweis Gültig Bis:: 12.05.2034
Energieausweis Art: Bedarf
Anzahl Balkone: 1
Balkon/Terrassen - Fläche: 13
Beziehbar: Dezember 2027
Etage: 1. DG
WC: 1
Abstellräume: 2
Balkon
barrierefrei
Neubau
Personenaufzug
Parkett
Badewanne
Fußbodenheizung
Kabel/Sat-TV
Fahrradraum
Klimaanlage
Massiv
Massivbauweise
seniorengerecht
Tiefgarage
Niedrigenergiehaus
Erdwärme
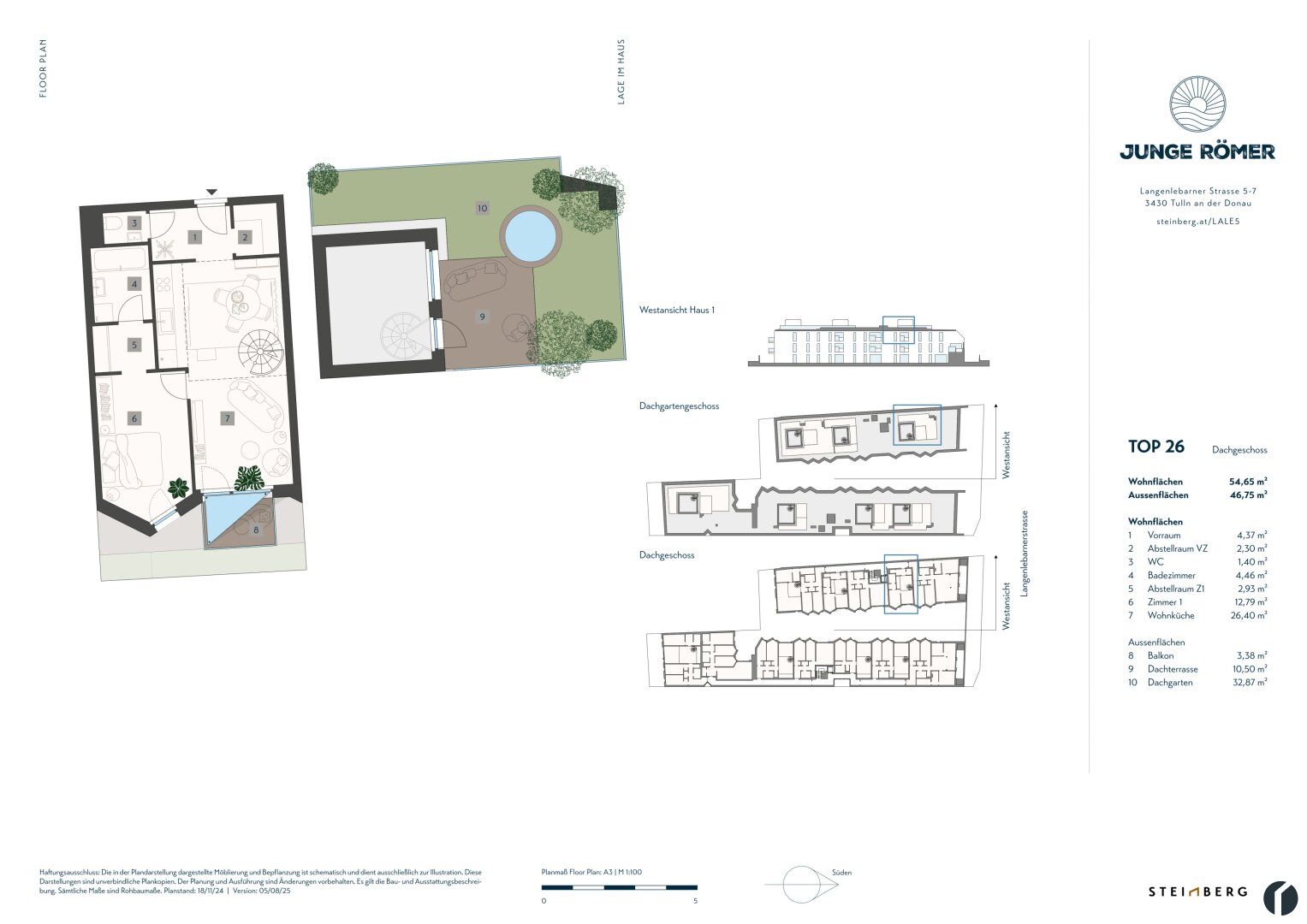
Wohnungsplan Top 26
Wohnungsplan Top 26
Erdgeschoss
Erdgeschoss
Obergeschoss
Obergeschoss

Ähnliche Objekte

vergleichen
Einrichtungsbeispiel - Wohnzimmer

Exklusiver Wohntraum im Herzen von Tulln – g...

€ 690.000
4
Schlafzimmer
2
Badezimmer
135 m2
Größe
Mai 8, 2026
vergleichen
1Uw62mWPsDkpqdN63rEQlK

Neubauprojekt in Endphase | Moderne Dachgesc...

€ 398.900
3
Schlafzimmer
1
Badezimmer

Immobilien86 KG
Claudia Friesinger

Kontaktaufnahme









    • Preisinformation
      Betriebskosten123,00 €
      Objektpreis405.000,00 €

    Vergleichen